

Ostsächsische Sparkasse Dresden
Herr Paul Rothe
035 ···
Nr. anzeigenPreise & Kosten
Provision für Käufer
3,57 % inkl. MwSt.
Lage
Lockwitz ist ein Stadtteil im äußersten Südosten der Stadt Dresden und liegt am nördlichen Ende des Lockwitztals am gleichnamigen Lockwitzbach. In das ca. 10 km entfernte Stadtzentrum gelangt man mittels des öffentlichen Nahverkehrs. Der Stadtteil wird im Norden von der Bundesstraße 172 geschnitten und ist zudem von der A 17...
Das Haus
Kategorie
Einfamilienhaus
Baujahr
1930
Bezug
Verkauf
Energie & Heizung
Warum sehe ich diese Anzeige? – Du siehst diese Anzeige basierend auf Ihrer Navigation auf unserer Website und den Suchkriterien, die du verwendet hast.
Energieausweistyp
Bedarfsausweis
Gebäudetyp
Wohngebäude
Baujahr laut Energieausweis
1930
Wesentliche Energieträger
Gas
Gültigkeit
06.11.2025 bis 05.11.2035
Effizienzklasse
H
Endenergiebedarf
280,20 kWh/(m²·a)
Weitere Energiedaten
Haustyp
Massivhaus
Energieträger
Gas
Heizungsart
Zentralheizung
Details
Objektbeschreibung
Kurzbeschreibung
Ihr neues Zuhause wartet und bietet Ihnen viele Möglichkeiten zur Selbstverwirklichung!
Objekt
Das angebotene freistehende Einfamilienhaus befindet sich im beliebten Stadtteil Dresden-Lockwitz und besticht neben der guten Lage mit einem großen Grundstück.
Das Objekt wurde ca. 1930...
Ausstattung
Individuelle Ausstattungsmerkmale:
- Küche mit Fenster
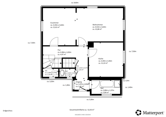
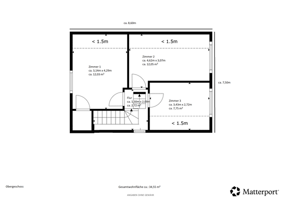
- 4 Zimmer auf ca. 86,98 m² Wohnfläche
- Weitläufiger Garten auf einer Grundstücksfläche von ca. 780 m²
- Küche mit Fenster
- Tageslichtbad mit Badewanne
- Vollständig unterkellert
- 2 Garagen
- überdachter Sitzbereich im Garten
-...
Weitere Informationen
Sonstiges
Wir bitten um Verständnis, dass wir nur vollständige Anfragen (E-Mail, Fax, Brief) mit Namen, Anschrift und Telefonnummer beantworten können.
Haftungsausschluss: Alle Angaben haben wir vom Eigentümer erhalten. Für deren Richtigkeit können wir keine Gewähr übernehmen. Einen Zwischenverkauf oder eine...
Anbieter der Immobilie

Online-ID: 2pgxh56
Referenznummer: 59-0210-8318
Finde Angebote wie dieses
Hier geht es zu unserem Impressum, den Allgemeinen Geschäftsbedingungen, den Hinweisen zum Datenschutz und nutzungsbasierter Online-Werbung.