
Salli's Immobiliengesellschaft mbH
Herr Boran Salli
040 ···
Nr. anzeigenPreise & Kosten
Provision für Käufer
provisionsfrei
Lage
Das Grundstück befindet sich im Büchener Weg in Lauenburg/Elbe, in einer zentralen und gewachsenen Wohnlage.
Einkaufsmöglichkeiten, Schulen, Kindergärten sowie alle Einrichtungen des täglichen Bedarfs sind gut erreichbar. Die Umgebung eignet sich ideal für Familien und bietet eine angenehme Wohnatmosphäre.
Durch...
Die Immobilie
Zu diesem Angebot wurden vom Anbieter keine weiteren Daten hinterlegt. Für weitere Informationen bitte den Anbieter kontaktieren.
Nach Informationen fragenDetails
Objektbeschreibung
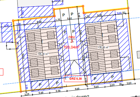
Zum Verkauf steht ein Grundstück für ein Doppelhaus in zentraler Wohnlage von Lauenburg/Elbe (Büchener Weg).
Die angebotene Fläche umfasst ca. 352 m² Grundstück und ist Teil eines insgesamt ca. 704 m² großen Grundstücks, für das ein positiver Bauvorbescheid zur Errichtung von zwei Doppelhäusern (4 Wohneinheiten)...
Ausstattung
- Grundstück: ca. 352 m²
- Gesamtgrundstück: ca. 704 m²
- Positiver Bauvorbescheid vorhanden
- Geplante Bebauung: Doppelhaus (2 Wohneinheiten)
- Ca. 100 m² Wohnfläche je Einheit
- Ca. 200 m² Gesamtwohnfläche möglich
- Eingeschossig + Dachgeschoss (Satteldach)
- Kellerbau möglich
- Ideal für zwei...
Anbieter der Immobilie
Salli's Immobiliengesellschaft mbH
Neuer Wall 8, 20354 Hamburg-Mitte
Online-ID: 2pgup56
Finde Angebote wie dieses
Hier geht es zu unserem Impressum, den Allgemeinen Geschäftsbedingungen, den Hinweisen zum Datenschutz und nutzungsbasierter Online-Werbung.