
HausHirsch GmbH
Frau Yuliya Ziegler
+49 ···
Nr. anzeigenPreise & Kosten
Provision für Käufer
3.57%
3,57%
Lage
Lagebeschreibung:
Diese Immobilie befindet sich in der charmanten Stadt Bad Dürrheim, einer beliebten Wohngegend mit hervorragender Verkehrsanbindung. Nur einen kurzen 5-minütigen Fußweg entfernt finden Sie die nächste Haltestelle des öffentlichen Personennahverkehrs (ÖPNV), die eine bequeme und regelmäßige Anbindung...
Die Wohnung
Wohnungslage
3. Geschoss
Derzeitige Nutzung
vermietet
Wohnanlage
Energie & Heizung
Warum sehe ich diese Anzeige? – Du siehst diese Anzeige basierend auf Ihrer Navigation auf unserer Website und den Suchkriterien, die du verwendet hast.
Energieausweistyp
Verbrauchsausweis
Gebäudetyp
Wohngebäude
Wesentliche Energieträger
GAS
Effizienzklasse
B
Endenergieverbrauch
71,81 kWh/(m²·a)
Details
Objektbeschreibung
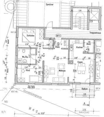
Entdecken Sie Ihre neue Eigentumswohnung in Bad Dürrheim! Diese charmante 3,5-Zimmer-Etagenwohnung bietet mit ihren 73 m² großzügigen Wohnraum für Sie und Ihre Familie. Die Wohnung befindet sich im 3. Obergeschoss eines gepflegten Gebäudes mit Aufzug und wurde zuletzt im Jahr 2020 modernisiert und saniert.
. Die...
Ausstattung
Beim Betreten der modernen 3,5 Zimmer Wohnung im 3. Obergeschoss eines Mehrfamilienhauses erwartet Sie ein einladendes Wohnzimmer mit Zugang zum Balkon. Hier können Sie entspannte Stunden im Freien genießen. Zudem stehen Ihnen zwei helle und geräumige Schlafzimmer zur Verfügung, die Ruhe und Privatsphäre bieten. Die...
Preisinformation
1 Garagenstellplatz, Kaufpreis: 10.000,00 EUR
Nettokaltmiete: 740,00 EUR
Weitere Informationen
Sonstiges
Haftungsausschluss:
Wir weisen darauf hin, dass die von uns weitergegebenen Objektinformationen, Unterlagen, Pläne etc. vom Verkäufer bzw. Vermieter stammen. Eine Haftung für die Richtigkeit oder Vollständigkeit der Angaben übernehmen wir daher nicht. Es obliegt daher unseren Kunden, die darin enthaltenen...
Anbieter der Immobilie
Online-ID: 2pgua52
Referenznummer: HA241357949
Finde Angebote wie dieses
Hier geht es zu unserem Impressum, den Allgemeinen Geschäftsbedingungen, den Hinweisen zum Datenschutz und nutzungsbasierter Online-Werbung.