

DAHLER Potsdam | Berlin-Wannsee | Kleinmachnow
Herr Christian Aschenbeck
033 ···
Nr. anzeigenPreise & Kosten
Provision für Käufer
3,57% inkl. MwSt. bezogen auf den beurkundeten Kaufpreis
Lage
Die Faszination und das urbane Leben Berlins ziehen nach wie vor Menschen aus der ganzen Welt an, die ihren Lebensmittelpunkt in dieser pulsierenden Stadt suchen. Im Südwesten der Stadt ist der ländliche Stadtteil Wannsee gelegen, eine der exklusivsten und gefragtesten Wohngegenden in Berlin. Bereits im Kaiserreich und später...
Die Wohnung
Kategorie
Maisonette
Wohnungslage
1. Geschoss
Wohnanlage
Energie & Heizung
Warum sehe ich diese Anzeige? – Du siehst diese Anzeige basierend auf Ihrer Navigation auf unserer Website und den Suchkriterien, die du verwendet hast.
Energieausweistyp
Verbrauchsausweis
Gebäudetyp
Wohngebäude
Baujahr laut Energieausweis
1910
Wesentliche Energieträger
OEL
Gültigkeit
bis 21.12.2029
Effizienzklasse
F
Endenergieverbrauch
192,10 kWh/(m²·a)
Weitere Energiedaten
Energieträger
Öl
Heizungsart
offener Kamin, Zentralheizung
Details
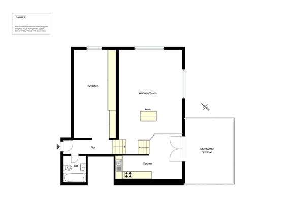
Objektbeschreibung
Diese außergewöhnliche Wohnung im 1. Obergeschoss einer repräsentativen Villa von 1910 vereint historischen Charme mit einem Wohngefühl, das in dieser Form nur selten zu finden ist. Auf ca. 94,23 m² Wohnfläche eröffnet sich ein stilvolles Zuhause in privilegierter Wasserlage zwischen Kleinem Wannsee und Pohlesee. Besonders...
Ausstattung
. Stilvolle Wohnung im 1. Obergeschoss einer repräsentativen Villa aus ca. 1910
. Ca. 94 m² Wohnfläche
. Exklusive Wasserlage zwischen Kleinem Wannsee und Pohlesee
. Großzügiger, lichtdurchfluteter Wohn- und Essbereich
. Beeindruckende Sichtachsen und weiter Blick über das Wasser
. Riesige, überdachte Terrasse...
Preisinformation
1 Carportplatz
Weitere Informationen
Sonstiges
Ihre Werte sind bei uns in besten Händen
DAHLER ist auf die Vermittlung hochwertiger Wohnimmobilien in bevorzugten Lagen spezialisiert. Seit über 30 Jahren wird unser Unternehmen von Kirsten und Björn Dahler geführt und setzt mit Innovationskraft und Servicequalität Maßstäbe in der Branche. Unsere mehr als...
Anbieter der Immobilie

Online-ID: 2pgns56
Referenznummer: D-WAN8349-Mitte-LIV
Finde Angebote wie dieses
Hier geht es zu unserem Impressum, den Allgemeinen Geschäftsbedingungen, den Hinweisen zum Datenschutz und nutzungsbasierter Online-Werbung.