
Crozilla.com
Opereta
+38 ···
Nr. anzeigenPreise & Kosten
Provision für Käufer
Bitte beachte, das Angebot kann bei Vertragsabschluss die Zahlung einer Provision beinhalten. Weitere Informationen erhältst Du vom Anbieter.
Wohnanlage
Details
Objektbeschreibung
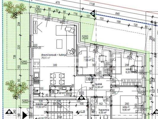
NOVOGRADNJA, STAN, PRODAJA, RUDES
Prodaje se 4S stan u prizemlju zgrade od 2kata sa 3 stana.
Stan je unutarnje povrsine 63m2, a zajedno sa vrtom od 50-tak m2 obracunato po koeficijentu je 68m2. Kvalitetna gradnja i vrhunski materijali ( hansgrohe sanitarije, hrastov parket 1. klase, dizalice topline ) . Obavezna kupnja...
Weitere Informationen
Stichworte
Anzahl der Schlafzimmer: 3, Anzahl der Badezimmer: 1, 1 Etagen
Anbieter der Immobilie
Crozilla.com
Nova cesta 60, 10000 ZAGREB
Online-ID: 2pgn354
Referenznummer: 19548669_1
Finde Angebote wie dieses
Hier geht es zu unserem Impressum, den Allgemeinen Geschäftsbedingungen, den Hinweisen zum Datenschutz und nutzungsbasierter Online-Werbung.