

Gründer Immobilien
Herr Ralf Gründer
049 ···
Nr. anzeigenPreise & Kosten
Provision für Käufer
provisionsfrei
Lage
Die Immobilie befindet sich in einer ruhigen und zugleich stadtnahen Wohnlage von Rhede. Das Umfeld ist geprägt von einer gewachsenen Wohnstruktur mit überwiegend Ein- und Mehrfamilienhäusern, was für ein angenehmes und nachgefragtes Wohnumfeld sorgt.
Trotz der ruhigen Lage sind sämtliche Einrichtungen des täglichen...
Das Haus
Kategorie
Mehrfamilienhaus
Baujahr
2025
Bezug
nach Vereinbarung
Derzeitige Nutzung
vermietet
Energie & Heizung
Warum sehe ich diese Anzeige? – Du siehst diese Anzeige basierend auf Ihrer Navigation auf unserer Website und den Suchkriterien, die du verwendet hast.
Weitere Energiedaten
Heizungsart
Fußbodenheizung, Luft-/Wasser-Wärmepumpe
Details
Objektbeschreibung
Moderne Kapitalanlage in Rhede
Neubau-Mehrfamilienhaus | 4 Einheiten | Vollvermietet | Provisionsfrei für den Käufer - Nachhaltig investieren - sofort profitieren
Dieses im Jahr 2025 fertiggestellte Mehrfamilienhaus präsentiert sich als werthaltige und zukunftssichere Kapitalanlage in attraktiver Wohnlage von...
Ausstattung
Bei der Auswahl der Ausstattung wurde besonderer Wert auf Qualität, Langlebigkeit und zeitlose Gestaltung gelegt. Ziel war es, eine Kombination aus modernem Wohnkomfort und nachhaltiger Werthaltigkeit zu schaffen, die sowohl den Ansprüchen heutiger Mieter als auch den Erwartungen eines Kapitalanlegers gerecht wird.
In...
Preisinformation
4 Stellplätze
Weitere Informationen
Sonstiges
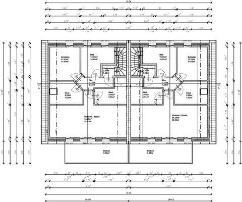
Wohn- u. Nutzflächenaufteilung:
Erdgeschoss:
Raumaufteilung gemeinschaftlich:
Eingang/Treppenhaus ca. 5,09 m²
Hausanschlussraum ca. 6,14 m²
Raumaufteilung Erdgeschoss Wohnung 1+2
Flur ca. 6,21 m²
Gäste WC ca. 2,15 m²
Badezimmer ca. 7,18 m²
Küche/Wohn/Essbereich ca. 32,53...
Anbieter der Immobilie
Gründer Immobilien
Haupstraße 97, 26892 Dörpen

Online-ID: 2pgk954
Referenznummer: 8504
Finde Angebote wie dieses
Hier geht es zu unserem Impressum, den Allgemeinen Geschäftsbedingungen, den Hinweisen zum Datenschutz und nutzungsbasierter Online-Werbung.