

Peter Peters Immobilien GmbH &Co.KG
Herr Peter Peters
046 ···
Nr. anzeigenPreise & Kosten
Provision für Käufer
3,57 % inkl. MwSt.
Lage
Wenningstedt liegt südlich von Kampen und nördlich von Westerland am Rande einer Dünenlandschaft auf dem Roten Kliff. Unterhalb des Kliffs erstreckt sich ein Sandstrand, der insbesondere im Sommer als bewachter Badestrand die Haupt-Touristenattraktion ist. Das Herzstück von Wenningstedt ist der idyllische Dorfteich mit seiner...
Das Haus
Kategorie
Einfamilienhaus
Baujahr
2026
Details
Objektbeschreibung
Hier erwarten Sie ein reetgedecktes Einfamilienhaus in bester Lage in der ersten Strandreihe direkt hinter den Wenningstedter Dünen, einem der beliebtesten Orte auf Sylt.
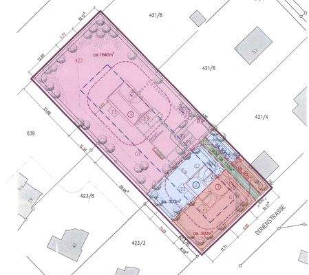
Das Grundstück ist im klassischen Sylter Stil gehalten und eingewachsen mit Bäumen, Sträuchern und Hecken sowie Sylter Rosen.
Es stehen zwei...
Ausstattung
Das Erdgeschoss beeindruckt mit einem offenen, großzügigen Wohn- und Essbereich und stilvollem Gaskamin. Die drei sonnigen Terrassen sind harmonisch entlang des gesamten Wohnbereichs verteilt und schaffen fließende Übergänge zwischen innen und außen. Ein Gäste-WC rundet das Erdgeschoss ab.
Im Obergeschoss erwarten Sie zwei...
Preisinformation
2 Stellplätze
Weitere Informationen
Stichworte
Gesamtfläche: 324,12 m², Anzahl der Schlafzimmer: 2, Anzahl der Badezimmer: 4, Anzahl der separaten WCs: 2, Bundesland: Schleswig-Holstein
Anbieter der Immobilie

Online-ID: 2pgj357
Referenznummer: 2252
Finde Angebote wie dieses
Hier geht es zu unserem Impressum, den Allgemeinen Geschäftsbedingungen, den Hinweisen zum Datenschutz und nutzungsbasierter Online-Werbung.