
Schwabenhaus Rosenheim - Rudolf Stier - Handelsvertretung für die Schwabenhaus GmbH
Herr Rudolf Stier
+49 ···
Nr. anzeigenPreise & Kosten
Provision für Käufer
3,57 % inkl. MwSt auf den Grundstücksanteil inkl. MwSt.
Gilt nur für den Grundstücksanteil; Haus provisionsfrei. Grundstückspreis variabel, genaue Berechnung vor Maklervertragsabschluss.
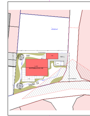
Lage
Emmerting ist eine attraktive Gemeinde im oberbayerischen Landkreis Altötting und liegt in unmittelbarer Nähe zur Stadt Burghausen. Die rund 4.000 Einwohner zählende Gemeinde verbindet ruhiges, naturnahes Wohnen mit einer guten regionalen Infrastruktur und kurzen Wegen zu wichtigen Wirtschaftsstandorten der...
Das Haus
Kategorie
Einfamilienhaus
Energie & Heizung
Warum sehe ich diese Anzeige? – Du siehst diese Anzeige basierend auf Ihrer Navigation auf unserer Website und den Suchkriterien, die du verwendet hast.
Weitere Energiedaten
Heizungsart
Fußbodenheizung
Details
Objektbeschreibung
Herzlich willkommen in Ihrem neuen Zuhause, das wir perfekt auf Ihre präzisen Bedürfnisse anpassen. Unsere Häuser werden von Grund auf mit scharfsinniger Genauigkeit entworfen und bieten eine perfekte Mischung aus Zahlen, Daten und Fakten.
Jeder Quadratzentimeter dieses Hauses wird sorgfältig vermessen und optimal...
Ausstattung
.Architektonische Präzision: Die Immobilie besticht durch klare Linien und eine durchdachte Raumaufteilung, die höchsten Ansprüchen an Eleganz und Funktionalität gerecht wird.
.Hochwertige Materialien: Die Verwendung erstklassiger Materialien spiegelt das Streben nach Qualität und Langlebigkeit wider.
.Effiziente...
Weitere Informationen
Sonstiges
Das Haus ist projektiert inkl. Grundstück. Das Grundstück wird in Kommission angeboten bzw. direkt von Dritten verkauft. Daher kann der o.g. Preis aufgrund aktueller Marktsituationen schwanken.
Die Bauabwicklung kann kurzfristig nach Grundstückserwerb begonnen werden. Bilder zeigen möglicherweise...
Anbieter der Immobilie
Schwabenhaus Rosenheim - Rudolf Stier - Handelsvertretung für die Schwabenhaus GmbH
Hauptstraße 4d, 83339 Chieming

Online-ID: 2pghk52
Referenznummer: SH-RO-375474-Emmerting
Finde Angebote wie dieses
Hier geht es zu unserem Impressum, den Allgemeinen Geschäftsbedingungen, den Hinweisen zum Datenschutz und nutzungsbasierter Online-Werbung.