
Immobiliengruppe Peter Kittlaus GmbH
Frau Nancy Ehlert
004 ···
Nr. anzeigenPreise & Kosten
Provision für Käufer
4,76%
Lage
Das Grundstück befindet sich in Sankt Augustin im beliebten Stadtteil Hangelar, einer gefragten Wohnlage im Rhein-Sieg-Kreis mit angenehmem, gewachsenem Umfeld. Die Umgebung ist überwiegend durch Wohnbebauung geprägt und bietet eine ruhige, familienfreundliche Atmosphäre mit guter...
Das Grundstück
Details
Objektbeschreibung
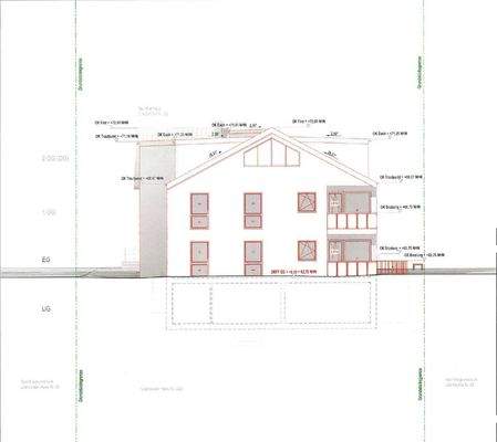
Willkommen in Sankt Augustin-Hangelar, wo wir Ihnen ein einzigartiges Grundstück mit Baugenehmigung für ein 6 Parteienhaus mit einer Gesamtwohnfläche von 511,75 m² präsentieren. Dieses attraktive Grundstück mit einer Größe von ca. 785 m² befindet sich in einer begehrten Wohngegend, die durch ihre ruhige und dennoch zentrale...
Ausstattung
Eine positive Baugenehmigung liegt für das Grundstück vor.
Weitere Informationen
Sonstiges
Gerne können Sie sich auf unserer Homepage noch ausführlicher über dieses Objekt informieren - klicken Sie dazu einfach auf den untenstehenden Link. Alternativ können Sie aber auch direkt hier über das Portal eine Anfrage stellen.
Stichworte
Distanz zum Kindergarten: 0.25, Distanz zur Grundschule: 0.07...
Anbieter der Immobilie
Online-ID: 2pggk57
Referenznummer: 781
Finde Angebote wie dieses
Hier geht es zu unserem Impressum, den Allgemeinen Geschäftsbedingungen, den Hinweisen zum Datenschutz und nutzungsbasierter Online-Werbung.