
Athing & Eilers Immobilien
Herr René-Lucien Hayen
004 ···
Nr. anzeigenPreise & Kosten
Provision für Käufer
3,57% inkl. MwSt.
Lage
Die Immobilie befindet sich in ruhiger, ländlich geprägter Lage im Außenbereich von Westerstede, zwischen den Ortsteilen Hollriede und Neuengland. Die Umgebung ist von weitläufigen Wiesen, landwirtschaftlichen Flächen und eine aufgelockerte Bebauung geprägt und bietet ein hohes Maß an Ruhe und Privatsphäre.
Das Zentrum...
Das Haus
Kategorie
Mehrfamilienhaus
Baujahr
1934
Energie & Heizung
Warum sehe ich diese Anzeige? – Du siehst diese Anzeige basierend auf Ihrer Navigation auf unserer Website und den Suchkriterien, die du verwendet hast.
Energieausweistyp
Bedarfsausweis
Gebäudetyp
Wohngebäude
Baujahr laut Energieausweis
1934
Wesentliche Energieträger
ERDGAS_LEICHT
Gültigkeit
bis 23.03.2026
Effizienzklasse
F
Endenergiebedarf
160,90 kWh/(m²·a)
Details
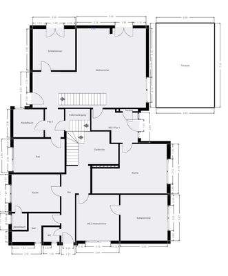
Objektbeschreibung
Dieses im Jahr 1934 errichtete Zweifamilienhaus in Westerstede befindet sich auf einem großzügigen Grundstück von ca. 8.500 m², bestehend aus rund 6.106 m² Wohnbaufläche sowie ca. 2.394 m² Grünfläche. Mit einer Gesamtwohnfläche von ca. 317,73 m² sowie zusätzlicher Nutzfläche von ca. 104,06 m² bietet die Immobilie vielseitige...
Ausstattung
- Massivbauweise mit Verblender aus rotem Klinker
- Schleppdach mit Betonpfalzziegeln
- vollständige Dachsaniserung in 2020
- Kernsanierung der Wohnung 1 in 2023/2024
- Kunststofffenster, zweifachverglast, teilweise dreifachverglast
- teilweise Außenrollläden
- Zwischendecke als Holzbalkendecke
-...
Weitere Informationen
Stichworte
Nutzfläche: 104,06 m², Anzahl der Schlafzimmer: 7, Anzahl der Badezimmer: 5, Anzahl der separaten WCs: 1, Anzahl Terrassen: 1
Anbieter der Immobilie
Online-ID: 2pggg57
Referenznummer: 20826
Finde Angebote wie dieses
Hier geht es zu unserem Impressum, den Allgemeinen Geschäftsbedingungen, den Hinweisen zum Datenschutz und nutzungsbasierter Online-Werbung.