

Maklerkontor Ronny Kugel
Herr Ronny Kugel
039 ···
Nr. anzeigenPreise & Kosten
Provision für Käufer
3,57 % inkl. MwSt.
Lage
Die Immobilie befindet sich in Penzlin, einer idyllischen Kleinstadt im Landkreis Mecklenburgische Seenplatte im Bundesland Mecklenburg-Vorpommern. Die Region zeichnet sich durch eine weitläufige, naturnahe Landschaft aus, die Teil der bekannten Mecklenburgischen Seenplatte ist und für ihre Seen, Wälder und ländlichen...
Das Haus
Kategorie
Einfamilienhaus
Baujahr
1974
Bezug
sofort
Energie & Heizung
Warum sehe ich diese Anzeige? – Du siehst diese Anzeige basierend auf Ihrer Navigation auf unserer Website und den Suchkriterien, die du verwendet hast.
Energieausweistyp
Bedarfsausweis
Gebäudetyp
Wohngebäude
Baujahr laut Energieausweis
1974
Wesentliche Energieträger
FLUESSIGGAS
Gültigkeit
bis 28.03.2036
Effizienzklasse
F
Endenergiebedarf
178,00 kWh/(m²·a)
Weitere Energiedaten
Energieträger
Gas
Heizungsart
offener Kamin, Zentralheizung
Details
Objektbeschreibung
Ein Ort, der Raum für neue Ideen schafft - und nur wenige Schritte vom Wasser entfernt liegt.
Dieses Einfamilienhaus in Penzlin vereint Ruhe, Natur und Entwicklungspotenzial auf besondere Weise. Fußläufig zum großen Stadtsee gelegen, bietet es eine Lage, die im Alltag entschleunigt und gleichzeitig viel Freiraum für...
Ausstattung
Gebäude
- Einfamilienhaus, Baujahr 1974
- Sanierungsbedürftig
- Voll unterkellert
- Anbau mit Diele, Abstellkammer und Heizraum
Wohnbereiche
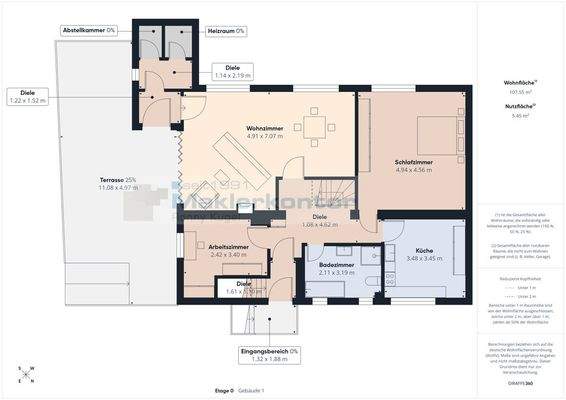
- 139?m² Wohnfläche
- Wohnzimmer lichtdurchflutet, Zugang zur Terrasse
- Erdgeschoss: Wohnzimmer, Arbeitszimmer, Schlafzimmer, Badezimmer, Küche
-...
Preisinformation
1 Stellplatz
1 Garagenstellplatz
Weitere Informationen
Sonstiges
Die Immobilie ist ab sofort verfügbar und bietet die Möglichkeit, zeitnah in ein neues Zuhause einzuziehen. Das Haus verfügt über moderne Annehmlichkeiten und ist über einen Flüssiggasanschluss beheizbar, wobei kein Tank auf dem Grundstück vorhanden ist. Eine weitere alternative Heizquelle ist der vorhandene...
Anbieter der Immobilie
Maklerkontor Ronny Kugel
Neustrelitzer Str. 16, 17033 Neubrandenburg

Online-ID: 2pgev56
Referenznummer: 202304
Finde Angebote wie dieses
Hier geht es zu unserem Impressum, den Allgemeinen Geschäftsbedingungen, den Hinweisen zum Datenschutz und nutzungsbasierter Online-Werbung.