
Ines Thüne Immobilien
Frau Ines Thüne
036 ···
Nr. anzeigenPreise & Kosten
Provision für Käufer
3,57% inkl. MwSt.
Das Maklerhonorar beträgt jeweils (Käufer, sowie Verkäufer) 3,57% (inkl. MwSt.) vom Kaufpreis und ist mit Unterzeichnung des notariellen Kaufvertrages zur Zahlung fällig!
Lage
Bickenriede ist ein Dorf am Rand des Eichsfeldes mit 1430 Einwohnern. Der Ort gehört zur Stadt und Landgemeinde Dingelstädt und liegt im Landkreis Eichsfeld, im nordwestlichen Teil Thüringens.
Im Ort sind mehrere Firmen angesiedelt. Für die Kleinen gibt es einen Kindergarten, eine Grundschule, sowie für die Grundversorgung...
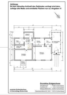
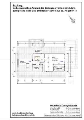
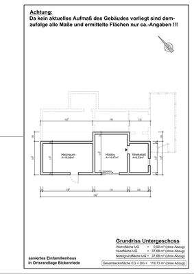
Das Haus
Kategorie
Einfamilienhaus
Baujahr
1970
Bezug
nach Absprache
Energie & Heizung
Warum sehe ich diese Anzeige? – Du siehst diese Anzeige basierend auf Ihrer Navigation auf unserer Website und den Suchkriterien, die du verwendet hast.
Energieausweistyp
Verbrauchsausweis
Gebäudetyp
Wohngebäude
Wesentliche Energieträger
Holz
Gültigkeit
21.07.2025 bis 20.07.2035
Effizienzklasse
D
Endenergieverbrauch
111,40 kWh/(m²·a)
Weitere Energiedaten
Haustyp
Massivhaus
Energieträger
Holz
Heizungsart
offener Kamin
Details
Objektbeschreibung
Willkommen in Ihrem gemütlichen, individuell gestalteten, Traumhaus in Bickenriede.
Das kleine, gemütliche Einfamilienhaus bietet Platz für 1-3 Personen, der herrliche Garten mit beheizbarem Pool, Pavillon, Sommerküche uvm laden zum Verweilen ein.
Beheizt wird das Wohnhaus mit einer Holz-/ Pellet-Heizung. Zusätzlich...
Ausstattung
+Baujahr ca. 1970, massive Bauweise + Außendämmung (2024)
+Sanierung Außenfassade 2024
+umfangreiche Modernisierung in 2019/ 20 (neue Fußböden, Fenster etc)
+Bad mit Fußbodenheizung, Fenster, Dusche, Badewanne
+Gäste WC
+moderne Einbauküche mit Elektrogeräten
+Fenster 2-fach verglast
+Wintergarten Bj...
Preisinformation
2 Stellplätze
1 Garagenstellplatz
Weitere Informationen
Sonstiges
Provision:
Das vom Käufer zu zahlende Maklerhonorar beträgt 3,57% (inkl. MwSt.) vom Kaufpreis und ist mit Unterzeichnung des notariellen Kaufvertrages zur Zahlung fällig!
Alle Angaben sind ohne Gewähr und basieren ausschließlich auf Informationen, die uns von unserem Auftraggeber zur Verfügung gestellt...
Anbieter der Immobilie
Online-ID: 2pfzd55
Referenznummer: 7553#zB4KJk
Finde Angebote wie dieses
Hier geht es zu unserem Impressum, den Allgemeinen Geschäftsbedingungen, den Hinweisen zum Datenschutz und nutzungsbasierter Online-Werbung.