
allkauf haus GmbH
Herr Stefan May
+49 ···
Nr. anzeigenPreise & Kosten
Provision für Käufer
provisionsfrei
Lage
- Zentrale Lage in Iphofen mit guter Anbindung
- Nahegelegene Einkaufsmöglichkeiten und Schulen
- Verschiedene Freizeitmöglichkeiten in der Umgebung
Das Haus
Kategorie
Doppelhaushälfte
Bezug
2026
Energie & Heizung
Warum sehe ich diese Anzeige? – Du siehst diese Anzeige basierend auf Ihrer Navigation auf unserer Website und den Suchkriterien, die du verwendet hast.
Weitere Energiedaten
Haustyp
KfW 55
Heizungsart
Fußbodenheizung, Luft-/Wasser-Wärmepumpe
Details
Objektbeschreibung
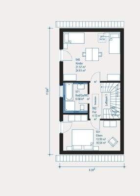
Entdecken Sie die perfekte Doppelhaushälfte, die ganz nach Ihren Wünschen und Vorstellungen projektiert wird. Mit einer großzügigen Wohnfläche von 113,64 m² und einem durchdachten Raumkonzept bietet dieses Zuhause viel Platz für Ihre Familie. Auf zwei Etagen verteilen sich 3 Zimmer, darunter zwei gemütliche Schlafzimmer, ein...
Ausstattung
- Hochwertige Ausstattung mit gehobenem Standard
- Luft-Wasser-Wärmepumpe für effiziente Energieversorgung
- Dreifach verglaste Fenster inkl. Aluminiumrollläden
- Hochwertiges Ausbauhaus in Holzrahmenbauweise
- Sanitärobjekte, Innentüren und Fliesen sind inklusive
- Detaillierte und leicht verständliche...
Weitere Informationen
Sonstiges
allkauf heißt maximale Sicherheit, kurze Lieferzeiten, garantierte Fertigstellung.
Das Unternehmen bietet Ihnen die Möglichkeit, zwischen drei Dienstleistungspaketen zu wählen: VIELBESCHÄFTIGTE, AMBITIONIERTE und HEIMWERKER. Damit können Sie den Innenausbau selbst übernehmen oder die Profis beauftragen, um...
Anbieter der Immobilie
allkauf haus GmbH
Ludwig Erhard Str. 2, 68162 Bad Vilbel
Online-ID: 2pfux53
Referenznummer: 3748-325-kw09-74041
Finde Angebote wie dieses
Hier geht es zu unserem Impressum, den Allgemeinen Geschäftsbedingungen, den Hinweisen zum Datenschutz und nutzungsbasierter Online-Werbung.