
Crozilla.com
NEO nekretnine
+38 ···
Nr. anzeigenPreise & Kosten
Provision für Käufer
Bitte beachte, das Angebot kann bei Vertragsabschluss die Zahlung einer Provision beinhalten. Weitere Informationen erhältst Du vom Anbieter.
Die Immobilie
Zu diesem Angebot wurden vom Anbieter keine weiteren Daten hinterlegt. Für weitere Informationen bitte den Anbieter kontaktieren.
Nach Informationen fragenDetails
Objektbeschreibung
ID CODE: 66
Antonela Klaric
Agent s licencom
Mob: +385 99 1642 958
E-mail: info@neonekretnine.hr
www.neonekretnine.hr
Weitere Informationen
Stichworte
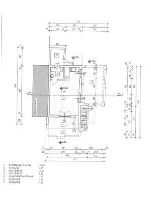
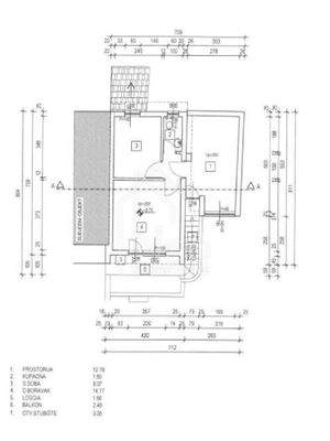
Anzahl der Schlafzimmer: 2, Anzahl der Badezimmer: 2, 3 Etagen
Anbieter der Immobilie
Crozilla.com
Nova cesta 60, 10000 ZAGREB
Online-ID: 2pfs652
Referenznummer: 17459981_2
Finde Angebote wie dieses
Hier geht es zu unserem Impressum, den Allgemeinen Geschäftsbedingungen, den Hinweisen zum Datenschutz und nutzungsbasierter Online-Werbung.