
ImmoConsult Hamburg L.Gottschewsky
Herr/Frau Lars Gottschewsky
017 ···
Nr. anzeigenPreise & Kosten
Provision für Käufer
Dieses Angebot ist provisionspflichtig für den Käufer , soweit nicht anders vereinbart. Die Provision bei Abschluss eines Kaufvertrages beträgt 6,00 % zzgl. gesetzlicher Mehrwertsteuer.
Lage
Leversen-Sieversen ist ein Ortsteil der beliebten und schönen niedersächsischen Gemeinde Rosengarten und beheimatet rund 1.190 Einwohner. Der Ort liegt unweit der Landesgrenze zu Hamburg auf dem Geestrücken und wirkt deshalb, aus Blickrichtung Hamburg, wie auf einem Berg gelegen. Die Nähe zu Hamburg und sein dörflicher Charme...
Das Grundstück
Energie & Heizung
Warum sehe ich diese Anzeige? – Du siehst diese Anzeige basierend auf Ihrer Navigation auf unserer Website und den Suchkriterien, die du verwendet hast.
Energieausweis: für diesen Gebäudetyp nicht notwendig
Details
Objektbeschreibung
ANGEBOT FÜR BAUTRÄGER
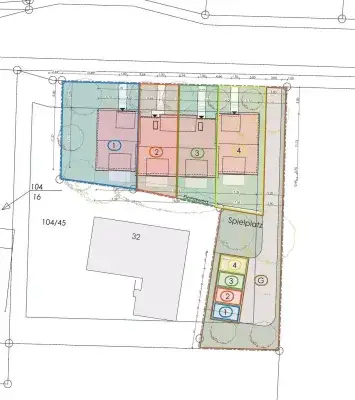
Das hier angebotene Projektgrundstück verfügt über ca. 1.244 qm Grundstücksfläche. Eine Baugenehmigung für “Neubau von Wohnhaus mit vier Wohneinheiten“wurde im vereinfachten Baugenehmigungsverfahren im Oktober 2025 erteilt. Das Grundstück wurde noch nicht erschlossen. Die Teilung erfolgte ideell. Die...
Anbieter der Immobilie
ImmoConsult Hamburg L.Gottschewsky
Beckedorfer Bogen 2 , 21218 Seevetal
Online-ID: 2pfra52
Finde Angebote wie dieses
Hier geht es zu unserem Impressum, den Allgemeinen Geschäftsbedingungen, den Hinweisen zum Datenschutz und nutzungsbasierter Online-Werbung.