
DAHLER Starnberg / schäferhochzwei GmbH
Herr Wigand Schäfer
004 ···
Nr. anzeigenPreise & Kosten
Provision für Käufer
3,57 % inkl. der gesetzl. MwSt., bezogen auf den Kaufpreis inkl. MwSt.
Lage
Gerne, hier ist die Lagebeschreibung auf Paare und Familien zugeschnitten:
Die Immobilie liegt in ruhiger, gewachsener Wohnlage von Inning am Ammersee, im begehrten Landkreis Starnberg, und bietet beste Voraussetzungen für Paare und Familien, die naturnah wohnen und zugleich gut angebunden sein möchten. Der Ammersee...
Das Haus
Kategorie
Einfamilienhaus
Baujahr
1971
Energie & Heizung
Warum sehe ich diese Anzeige? – Du siehst diese Anzeige basierend auf Ihrer Navigation auf unserer Website und den Suchkriterien, die du verwendet hast.
Energieausweistyp
Bedarfsausweis
Gebäudetyp
Wohngebäude
Baujahr laut Energieausweis
1988
Wesentliche Energieträger
OEL
Gültigkeit
bis 30.05.2025
Effizienzklasse
G
Endenergiebedarf
232,60 kWh/(m²·a)
Weitere Energiedaten
Energieträger
Öl
Details
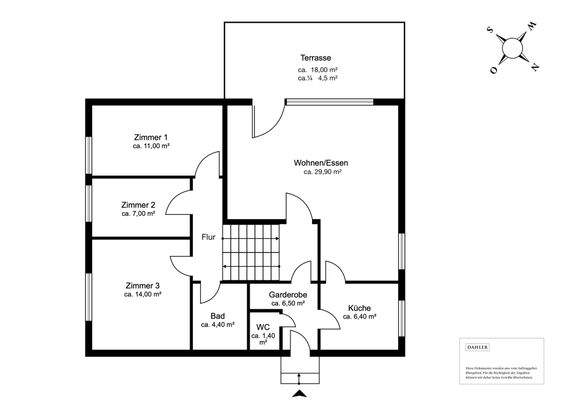
Objektbeschreibung
Das Haus ist grundsätzlich sofort bezugsfertig und präsentiert sich in gepflegtem sowie solidem Zustand. Wenn Sie die Immobilie jedoch auf einen neueren Stand bringen möchten, insbesondere bei Heizung, Böden und Bädern, sollten Sie je nach Anspruch mit einem Investitionsrahmen von ca. 250.000 € bis 300.000 € rechnen. Gerade...
Ausstattung
EIN ZUHAUSE ZUM ANKOMMEN - LICHT, RAUM & LEBENSQUALITÄT
? Großzügiger Wohn- und Essbereich mit beeindruckender Raumhöhe und direktem Zugang zur sonnigen Südost-Terrasse - das kommunikative Herz des Hauses
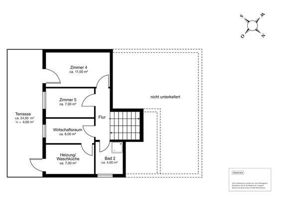
? Zwei Terrassen mit Südost- und Südwest-Ausrichtung - Sonne vom Frühstück bis in die...
Preisinformation
1 Garagenstellplatz
Weitere Informationen
Sonstiges
EIN ZUHAUSE FÜR PAARE UND FAMILIEN MIT LICHT, RAUM UND LEBENSQUALITÄT
? Großzügiger Wohn und Essbereich mit beeindruckender Raumhöhe und direktem Zugang zur sonnigen Südost Terrasse, ideal für gemeinsames Familienleben, Gäste und schöne Momente im Alltag
? Zwei Terrassen mit Südost und Südwest...
Anbieter der Immobilie
DAHLER Starnberg / schäferhochzwei GmbH
Maximilianstraße 8, 82319 Starnberg
Online-ID: 2pfpv57
Referenznummer: DC-STA-0196-6
Finde Angebote wie dieses
Hier geht es zu unserem Impressum, den Allgemeinen Geschäftsbedingungen, den Hinweisen zum Datenschutz und nutzungsbasierter Online-Werbung.