

Brückner & Teuchert Immobilien GdbR
Herr Heiko Teuchert
+49 ···
Nr. anzeigenPreise & Kosten
Provision für Käufer
Die vom Käufer bei Vertragsabschluss zu bezahlende Vermittlungsprovision beträgt 3,57 % inkl. gesetzl. MwSt. aus dem notariellen Kaufpreis (einschließlich TG/Carport/Garage/Stellplatz).
Lage
UNVERBAUBARE & ABOLUT RUHIGE TRAUMLAGE mit tollem Ausblick auf bzw. über den SCHWABACHGRUND !
Das Haus
Kategorie
Mehrfamilienhaus
Baujahr
1974
Energie & Heizung
Warum sehe ich diese Anzeige? – Du siehst diese Anzeige basierend auf Ihrer Navigation auf unserer Website und den Suchkriterien, die du verwendet hast.
Energieausweistyp
Bedarfsausweis
Gebäudetyp
Wohngebäude
Baujahr laut Energieausweis
1974
Wesentliche Energieträger
Öl
Gültigkeit
17.12.2025 bis 16.12.2035
Effizienzklasse
E
Endenergiebedarf
154,70 kWh/(m²·a)
Weitere Energiedaten
Energieträger
Öl
Heizungsart
Zentralheizung
Details
Objektbeschreibung
Objektbeschreibung
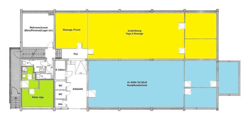
Das hier von uns angebotene Objekt wurde im Jahr 1974 ursprünglich als Wohn- und Fabrikationsgebäude errichtet und beherbergte über mehr als zwei Jahrzehnte die Produktionsräume der Fa. KÖHLER (Formenbau u. Spritzerei) im Erdgeschoss und mit weiteren Lagerräumen im Obergeschoss. Ebenfalls im Obergeschoss...
Dokumente
Anbieter der Immobilie
Brückner & Teuchert Immobilien GdbR
Alterlanger Str. 27, 91056 Erlangen

Online-ID: 2pfpd55
Finde Angebote wie dieses
Hier geht es zu unserem Impressum, den Allgemeinen Geschäftsbedingungen, den Hinweisen zum Datenschutz und nutzungsbasierter Online-Werbung.