
Schwabenhaus Warnemünde - Handelsvertretung für die Schwabenhaus GmbH
Sibba Al-Duri
+49 ···
Nr. anzeigenPreise & Kosten
Provision für Käufer
provisionsfrei
Lage
Kavelstorf
Das Haus
Kategorie
Einfamilienhaus
Energie & Heizung
Warum sehe ich diese Anzeige? – Du siehst diese Anzeige basierend auf Ihrer Navigation auf unserer Website und den Suchkriterien, die du verwendet hast.
Weitere Energiedaten
Heizungsart
Fußbodenheizung
Details
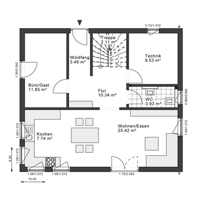
Objektbeschreibung
Bist du bereit? Lass uns loslegen!
Warum warten, wenn dein eigenes Zuhause nur eine Entscheidung entfernt ist?
Unsere Wegbegleiter holen dich dort ab, wo du gerade stehst, und ebnen deinen persönlichen Weg zum Wohneigentum.
Fehlt dir noch das passende Grundstück? Wir helfen dir, es zu finden.
Hast du Fragen...
Ausstattung
THINK WHITE - Do it yourself.
- Fertige Gebäudehülle - du entscheidest über den Innenausbau
- Maximale Individualität - für kreative Köpfe & Macher
- Ideal für Eigenleistung - handwerkliches Geschick spart bares Geld
- Optimierte Grundrisse - smarte Wohnkonzepte für flexible Gestaltung
-...
Weitere Informationen
Sonstiges
Das Haus ist projektiert inkl. Grundstück. Das Grundstück wird in Kommission angeboten bzw. direkt von Dritten verkauft. Daher kann der genannte Preis aufgrund aktueller Marktsituationen schwanken.
Die Bauabwicklung kann kurzfristig nach Grundstückserwerb begonnen werden. Bilder zeigen möglicherweise...
Anbieter der Immobilie
Schwabenhaus Warnemünde - Handelsvertretung für die Schwabenhaus GmbH
Am Strom 77, 18119 Warnemünde
Online-ID: 2pfku56
Referenznummer: WB-35224-Kavelstorf
Finde Angebote wie dieses
Hier geht es zu unserem Impressum, den Allgemeinen Geschäftsbedingungen, den Hinweisen zum Datenschutz und nutzungsbasierter Online-Werbung.