

Sirius Facilities GmbH
Herr Felix Meier
080 ···
Nr. anzeigenPreise & Kosten
Kaution
3 Bruttomonatsmieten
Provision für Mieter
Die Vermietung erfolgt provisionsfrei!
Warum sehe ich diese Anzeige? – Du siehst diese Anzeige basierend auf Ihrer Navigation auf unserer Website und den Suchkriterien, die du verwendet hast.
Lage
Der Sirius Business Park München-Feldkirchen überzeugt mit einer erstklassigen Lage. Das Autobahnkreuz München-Ost mit Anschluss an A94 und A99 erreichen Sie in weniger als 5 Minuten, die Messe München in nur 10 Minuten. Auch die Anbindung an den ÖPNV ist optimal: Die nächste Bushaltestelle liegt lediglich 3 Gehminuten...
Büro-/Praxisfläche
Kategorie
Bürofläche
Geschoss
Erdgeschoss
Details
Objektbeschreibung
Der Sirius Business Park München-Feldkirchen bietet vielseitige Gewerbeflächen. Helle Büros schaffen optimale Arbeitsbedingungen für Start-ups und etablierte Unternehmen. Moderne Lager- und Logistikhallen sowie eine zuverlässige Infrastruktur sorgen für kurze Wege und effiziente Abläufe. Dank der hervorragenden Anbindung an...
Ausstattung
Eckdaten:
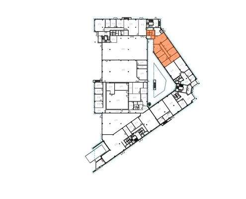
. 340,09 m² Gesamtfläche (HNF: 193,74 m² | ENF: 39,58 m² | NNF: 106,77 m²)
. Bürofläche im Erdgeschoss, behindertengerechter Zugang
. Teppichboden, Kunststofffenster und Sonnenschutz
. Empfangsbereich und Teeküche vorhanden
. Flexible Raumgestaltung möglich, exklusiv nutzbare Sanitäranlagen
. 24/7...
Weitere Informationen
Sonstiges
*Gilt für Neukundenverträge über Büros, die bis zum 16.03.26 unterzeichnet werden, nicht kombinierbar mit anderen Rabatten und Aktionen. Die mietfreie Zeit wird ab 12 Monaten Laufzeit im 12., ab 24 Monaten im 12. und 24. Monat gewährt. Das Angebot bezieht sich auf die Nettokaltmiete, Nebenkosten bzw. -anteile...
Dokumente
Anbieter der Immobilie

Online-ID: 2pfkr52
Referenznummer: A12543
Finde Angebote wie dieses
Hier geht es zu unserem Impressum, den Allgemeinen Geschäftsbedingungen, den Hinweisen zum Datenschutz und nutzungsbasierter Online-Werbung.