
Crozilla.com
NINA DOM
+38 ···
Nr. anzeigenPreise & Kosten
Provision für Käufer
Bitte beachte, das Angebot kann bei Vertragsabschluss die Zahlung einer Provision beinhalten. Weitere Informationen erhältst Du vom Anbieter.
Das Haus
Geschosse
1 Geschoss
Details
Objektbeschreibung
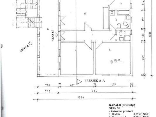
Familienanwesen bestehend aus zwei separaten Wohneinheiten inmitten eines schönen, großzügigen Gartens mit viel Grün.
Erdgeschoss: Überdachte Terrasse, Küche mit Ess- und Wohnzimmer, zwei Badezimmer, zwei Schlafzimmer, Abstellraum (dekorierter Raum).
Außentreppe zum Obergeschoss: Im Obergeschoss befindet sich der...
Weitere Informationen
Stichworte
Anzahl der Schlafzimmer: 4, Anzahl der Badezimmer: 4, 1 Etagen
Anbieter der Immobilie
Crozilla.com
Nova cesta 60, 10000 ZAGREB
Online-ID: 2pfjs57
Referenznummer: 18603601_5
Finde Angebote wie dieses
Hier geht es zu unserem Impressum, den Allgemeinen Geschäftsbedingungen, den Hinweisen zum Datenschutz und nutzungsbasierter Online-Werbung.