
Schwind Immobilien
Frau Anja Nickel
004 ···
Nr. anzeigenPreise & Kosten
Provision für Mieter
Nachweis- bzw Vermittlungscourtage beträgt bei Mietvertragslaufzeit ab 3 Jahren 3 Nettokaltmieten inkl. MwSt.
Warum sehe ich diese Anzeige? – Du siehst diese Anzeige basierend auf Ihrer Navigation auf unserer Website und den Suchkriterien, die du verwendet hast.
Lage
Das Gewerbegebiet Alsbach-Hähnlein befindet sich in der Gemeinde Alsbach-Hähnlein, im südlichen Teil des Landkreises Darmstadt-Dieburg in Hessen, Deutschland. Es ist verkehrstechnisch gut angebunden, sowohl an das Autobahnnetz als auch an die umliegenden Städte und Ballungszentren.
Wichtige...
Büro-/Praxisfläche
Kategorie
Bürofläche
Baujahr
1982
Bezug
nach Absprache
Details
Objektbeschreibung
Sie suchen eine große Gewerbefläche mit idealer Verkehrsanbindung an die A5 und A67 im Großraum Ludwigshafen? Aber es muss nicht Ludwigshafen sein? Dann möchte ich Ihnen diese Geschäftsräume in Alsbach-Hähnlein an der Bergstraße vorstellen - eine hochwertige Gewerbeimmobilie mit außergewöhnlicher Flächenvielfalt und maximaler...
Ausstattung
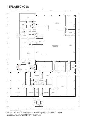
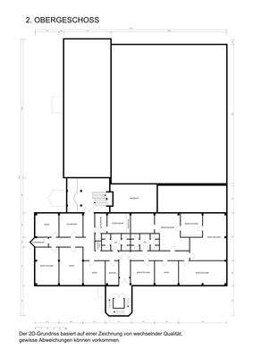
AUFTEILUNG UND SCHNITT:
Über den großzügigen und lichtdurchfluteten Eingangsbereich betreten Sie die Liegenschaft, von wo aus Sie bequem in die verschiedenen Teilbereiche des Gebäudes gelangen.
Der ursprüngliche Gebäudebereich und der Anbau sind im Erdgeschoss sowie im ersten Obergeschoss miteinander verbunden...
Preisinformation
50 Stellplätze
Weitere Informationen
Sonstiges
Haben wir Ihr Interesse geweckt? Dann füllen Sie einfach das nebenstehende Kontaktformular aus und schreiben Sie uns, wann Sie einen Besichtigungstermin wünschen. Sollten Sie zuvor noch Fragen haben, sind wir selbstverständlich für Sie erreichbar (Mo.-Fr. 10:00 bis 18:00 und Sa. von 10:00 bis 16:00).
Der...
Anbieter der Immobilie
Online-ID: 2pfhx55
Referenznummer: S27 Ludwigshafen
Finde Angebote wie dieses
Hier geht es zu unserem Impressum, den Allgemeinen Geschäftsbedingungen, den Hinweisen zum Datenschutz und nutzungsbasierter Online-Werbung.