
BLUFINK Immobilien GmbH
Herr Claudius Weckerle
+49 ···
Nr. anzeigenPreise & Kosten
Provision für Käufer
3,57 inkl. MwSt.
Lage
Die Kantstraße 81 in Albstadt bietet eine erstklassige Wohnlage, die städtisches Leben mit der Nähe zur Natur vereint. Gelegen auf der Schwäbischen Alb, zeichnet sich Albstadt durch eine hohe Lebensqualität aus, die durch die umgebenden dichten Wälder und offenen Landschaften unterstrichen wird. Diese Stadt vereint die Ruhe...
Die Wohnung
Wohnungslage
2. Geschoss
Wohnanlage
Energie & Heizung
Warum sehe ich diese Anzeige? – Du siehst diese Anzeige basierend auf Ihrer Navigation auf unserer Website und den Suchkriterien, die du verwendet hast.
Energieausweistyp
Bedarfsausweis
Gebäudetyp
Wohngebäude
Wesentliche Energieträger
Holzpellets
Gültigkeit
29.10.2021 bis 28.10.2031
Effizienzklasse
C
Endenergiebedarf
19,90 kWh/(m²·a)
Weitere Energiedaten
Energieträger
Pellets
Heizungsart
Zentralheizung
Details
Objektbeschreibung
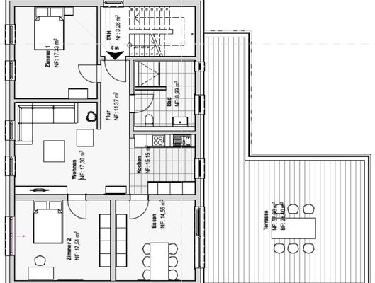
Diese hochwertig sanierte Wohnung im ersten Obergeschoss bietet auf ca. 126 m² ein modernes und zugleich behagliches Zuhause. Der helle Wohn-, Ess- und Küchenbereich (ca. 45 m²) bildet das Herzstück der Wohnung, ergänzt durch zwei Schlafzimmer und ein stilvoll ausgestattetes Badezimmer. Hochwertige Materialien wie...
Ausstattung
Hochwertige energetische Sanierung (KfW 70 Effizienzhaus-Standard, Sanierung 2022)
Fußbodenheizung in allen Wohnungen
Elektrische Rollläden
Moderne Elektroinstallation mit Netzwerkanschlüssen und multimedialen Steckdosen
Gegensprechanlage
Hochwertige Sanitärausstattung:
Bodenebene...
Weitere Informationen
Sonstiges
Alle Angaben in diesem Exposé basieren auf den Informationen des Verkäufers. Eine Haftung für deren Richtigkeit und Vollständigkeit wird nicht übernommen.
Stichworte
Anzahl der Schlafzimmer: 2, Anzahl der Badezimmer: 1, Anzahl Balkone: 1, Balkon-Terrassen-Fläche: 32,00 m², Bundesland: Baden-Württemberg...
Anbieter der Immobilie
BLUFINK Immobilien GmbH
Hägerstraße 1, 88662 Überlingen
Online-ID: 2pfeu57
Referenznummer: WE-2
Finde Angebote wie dieses
Hier geht es zu unserem Impressum, den Allgemeinen Geschäftsbedingungen, den Hinweisen zum Datenschutz und nutzungsbasierter Online-Werbung.