
HERON Immobilien GmbH
Frau Natalie Herrmann
004 ···
Nr. anzeigenPreise & Kosten
Provision für Käufer
4,76 % inkl. MwSt. inkl. MwSt.
Lage
Die Immobilie befindet sich in Pyli auf der griechischen Insel Kos und liegt in einer ruhigen, naturnahen Umgebung mit viel Privatsphäre. Das direkte Wohnumfeld ist geprägt von weitläufigen Grundstücken, mediterraner Vegetation und einem angenehmen Maß an Zurückgezogenheit. Gleichzeitig ist eine gute Erreichbarkeit der...
Das Haus
Kategorie
Einfamilienhaus
Baujahr
2001
Energie & Heizung
Warum sehe ich diese Anzeige? – Du siehst diese Anzeige basierend auf Ihrer Navigation auf unserer Website und den Suchkriterien, die du verwendet hast.
Weitere Energiedaten
Energieträger
Öl
Heizungsart
offener Kamin, Zentralheizung
Details
Objektbeschreibung
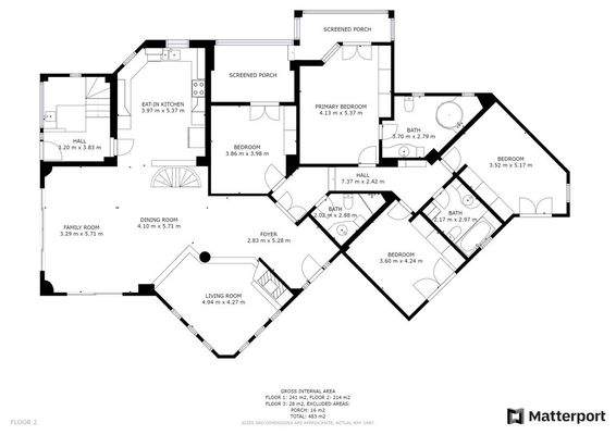
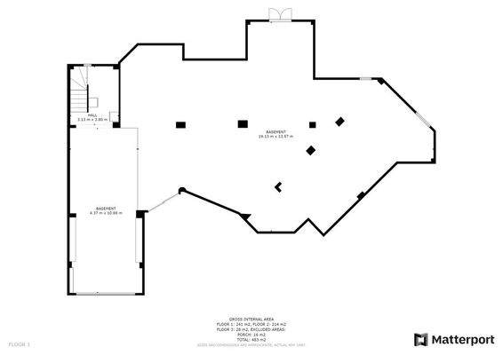
Diese außergewöhnliche Villa in Pyli auf der Insel Kos vereint Großzügigkeit, Privatsphäre und eine beeindruckende Lage inmitten mediterraner Natur. Das im Jahr 2001 errichtete Anwesen steht auf einem ca. 5.000 qm großen Grundstück und bietet mit ca. 217 qm Wohnfläche ein komfortables Zuhause, das sowohl als exklusive...
Ausstattung
Die 'Top 10'-Kaufgründe für dieses Haus:
1. Großzügige ca. 217 qm Wohnfläche bieten viel Platz für Familie, Gäste und individuelle Nutzungsmöglichkeiten.
2. Weitläufiges ca. 5.000 qm Grundstück schafft Privatsphäre, Ruhe und vielseitige Gestaltungsmöglichkeiten im Außenbereich.
3. Offener Wohn- und...
Preisinformation
2 Tiefgaragenstellplätze
Weitere Informationen
Sonstiges
Wir versenden das Exposé mit der virtuellen Besichtigung und der Anschrift des Hauses automatisch nach Erhalt Ihrer Anfrage an die angegebene E-Mail-Adresse. Falls diese E-Mail in Ihrem Postfach unauffindbar ist, überprüfen Sie bitte Ihren SPAM-Ordner.
Stichworte
Nutzfläche: 190,00 m², Anzahl der...
Anbieter der Immobilie
Online-ID: 2pfal57
Referenznummer: 8GR00421-4
Finde Angebote wie dieses
Hier geht es zu unserem Impressum, den Allgemeinen Geschäftsbedingungen, den Hinweisen zum Datenschutz und nutzungsbasierter Online-Werbung.