
TM Immobilien Paderborn
Herr Sören Siekmann
052 ···
Nr. anzeigenPreise & Kosten
Provision für Käufer
3,57 % inkl. MwSt.
Lage
Die Eigentumswohnung befindet sich in einer etablierten Wohnlage im Stadtteil Schloß Neuhaus/Mastbruch, einem der bevölkerungsreichsten und beliebtesten Stadtteile Paderborns mit rund 24.700 Einwohnern.
Der Ortsteil Mastbruch zeichnet sich durch ein gewachsenes, ruhiges Wohnumfeld mit überwiegend familienfreundlicher...
Die Wohnung
Kategorie
Maisonette
Wohnungslage
2. Geschoss
Derzeitige Nutzung
vermietet
Wohnanlage
Energie & Heizung
Warum sehe ich diese Anzeige? – Du siehst diese Anzeige basierend auf Ihrer Navigation auf unserer Website und den Suchkriterien, die du verwendet hast.
Energieausweistyp
Verbrauchsausweis
Gebäudetyp
Wohngebäude
Baujahr laut Energieausweis
1999
Wesentliche Energieträger
GAS
Gültigkeit
bis 27.09.2031
Effizienzklasse
C
Endenergieverbrauch
92,50 kWh/(m²·a)
Weitere Energiedaten
Energieträger
Gas
Details
Objektbeschreibung
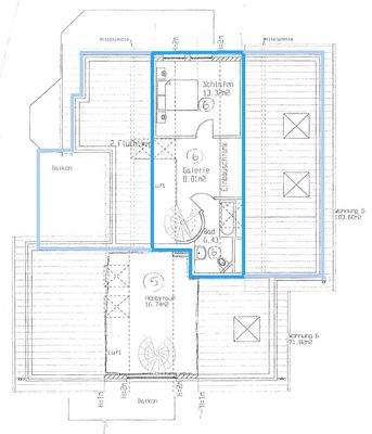
Diese moderne 3-Zimmer-Maisonettewohnung im 2. Ober- und Dachgeschoss eines gepflegten 6-Parteienhauses in Mastbruch sucht neue, stolze Eigentümer.
Durch ihre großzügige Raumaufteilung und ihre charmante und lichtdurchflutete Architektur ist diese Maisonettewohnung wirklich etwas Besonderes.
Eine hervorragende...
Ausstattung
* vermietete Maisonettewohnung im 6-Parteienhaus, Baujahr 1999
* 2. OG und DG (kein Aufzug)
* 3 Zimmer
* ca. 103,60 m² Wohnfläche (gem. Bauträgerunterlagen)
* Küche inklusive Einbauküche
* Tageslichtbadezimmer mit Badewanne auf der Galerieebene
* Gäste-WC mit Dusche auf der unteren Wohnebene
*...
Preisinformation
1 Carportplatz
Weitere Informationen
Sonstiges
Es liegt ein Energieverbrauchsausweis vor.
Dieser ist gültig bis 27.9.2031.
Endenergieverbrauch beträgt 92.50 kwh/(m²*a).
Wesentlicher Energieträger der Heizung ist Gas.
Das Baujahr des Objekts lt. Energieausweis ist 1999.
Die Energieeffizienzklasse ist C.
Bitte beachten Sie, dass bei einer...
Anbieter der Immobilie
Online-ID: 2pf3j54
Referenznummer: TMIP.K1027-1
Finde Angebote wie dieses
Weitere Immobilien
Hier geht es zu unserem Impressum, den Allgemeinen Geschäftsbedingungen, den Hinweisen zum Datenschutz und nutzungsbasierter Online-Werbung.