

Gründer Immobilien
Herr Ralf Gründer
049 ···
Nr. anzeigenPreise & Kosten
Provision für Käufer
provisionsfrei
Lage
Das Haus befindet sich in einer idyllischen und ruhigen Wohnlage in Surwold, direkt an einem kleinen Kanal. Die naturnahe Umgebung bietet eine hohe Lebensqualität und lädt zu zahlreichen Freizeitaktivitäten wie Spaziergängen, Radtouren oder Wassersport ein. Trotz der ruhigen Lage sind Einkaufsmöglichkeiten, Schulen, Ärzte und...
Das Haus
Kategorie
Mehrfamilienhaus
Baujahr
1992
Bezug
nach Vereinbarung
Energie & Heizung
Warum sehe ich diese Anzeige? – Du siehst diese Anzeige basierend auf Ihrer Navigation auf unserer Website und den Suchkriterien, die du verwendet hast.
Energieausweistyp
Verbrauchsausweis
Gebäudetyp
Wohngebäude
Wesentliche Energieträger
Erdgas leicht
Gültigkeit
23.04.2025 bis 22.04.2035
Effizienzklasse
C
Endenergieverbrauch
96,10 kWh/(m²·a) - Warmwasser enthalten
Details
Objektbeschreibung
Für Käufer Provisionsfrei: Dieses top gepflegte Zweifamilienhaus in Surwold besticht durch seine großzügige Wohnfläche von ca. 260 m², die sowohl für große Familien als auch für mehrere Generationen ideale Wohnmöglichkeiten bietet. Die durchdachte Raumaufteilung ermöglicht eine flexible Nutzung, sei es als...
Ausstattung
Ausstattung & Highlights
Das Haus überzeugt durch seine großzügigen und lichtdurchfluteten Wohnräume, die eine angenehme Wohnatmosphäre schaffen. Der Wohnbereich im Erdgeschoss ist ideal für geselliges Beisammensein und bietet dank seiner offenen Gestaltung eine einladende Atmosphäre. Die Dachgeschosswohnung mit...
Preisinformation
5 Stellplätze
Weitere Informationen
Sonstiges
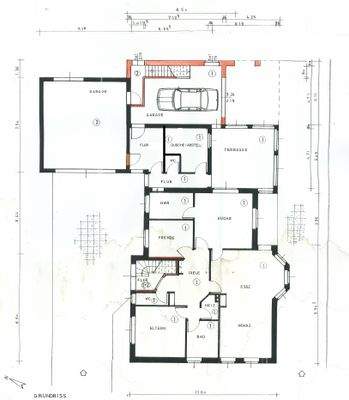
Wohnflächenaufteilung:
Erdgeschoss:
Windfang/Flur ca. 2,00 m²
Wohn-Esszimmer ca. 40,44 m²
Küche ca. 19,17 m²
Duschbad ca. 7,24 m2
Schlafzimmer ca. 16,08 m²
Schlafzimmer ca. 10,05 m²
Hauswirtschaftsraum ca. 7,06 m²
Gäste-WC ca. 2,66 m²
Wintergarten ca. 22,75 m²
Flur ca. 12,14...
Anbieter der Immobilie
Gründer Immobilien
Haupstraße 97, 26892 Dörpen

Online-ID: 2peze55
Referenznummer: 8441
Finde Angebote wie dieses
Hier geht es zu unserem Impressum, den Allgemeinen Geschäftsbedingungen, den Hinweisen zum Datenschutz und nutzungsbasierter Online-Werbung.