

Marc Maier Immobilien
Herr Marc Maier
071 ···
Nr. anzeigenPreise & Kosten
Provision für Käufer
provisionsfrei
Lage
Standort-Analyse: Ellwangen-Röhlingen
Strategische Mikrolage: Ruhe trifft Werthaltigkeit
Exklusive Rücklage: Die Positionierung in der südlichen hinteren Baureihe ist ein entscheidender Vermietungsvorteil. Sie kombiniert die zentrale Anbindung der Hauptstraße mit einer ruhigen, abgeschirmten Wohnatmosphäre ohne direkten...
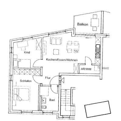
Die Wohnung
Wohnungslage
2. Geschoss
Bezug
01.09.2026
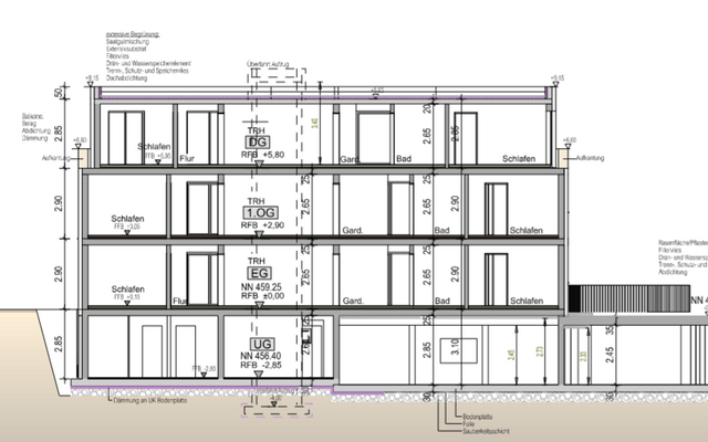
Wohnanlage
Energie & Heizung
Warum sehe ich diese Anzeige? – Du siehst diese Anzeige basierend auf Ihrer Navigation auf unserer Website und den Suchkriterien, die du verwendet hast.
Weitere Energiedaten
Heizungsart
Luft-/Wasser-Wärmepumpe
Details
Objektbeschreibung
Maximale Effizienz & Steuerkraft: Ihr KfW 40 EE Investment in Röhringens Bestlage!
Sichern Sie sich die letzte kompakte 3-Zimmer-Einheit in diesem nachhaltigen Neubauprojekt. Fertigstellung September 2026 - Profitieren Sie von attraktiven Abschreibungsmöglichkeiten!
Das Investment: Substanz trifft auf...
Ausstattung
Objekt-Highlights & Baubeschreibung
Energiestandard & Bauweise
Das Neubauprojekt wird als zukunftssicheres KfW-Effizienzhaus 40 EE gemäß GEG 2023 in solider Massivbauweise (Kalksandstein/Stahlbeton) errichtet. Ein modernes Wärmedämmverbundsystem und eine effiziente Luft-Wasser-Wärmepumpe sorgen für minimale...
Preisinformation
1 Tiefgaragenstellplatz
Weitere Informationen
Sonstiges
Ihr Weg in die eigenen vier Wände - Jetzt aktiv werden!
Der Rohbau steht, die Zukunft ist zum Greifen nah. Nutzen Sie die Gelegenheit, sich bereits in dieser frühen Phase ein Bild von der hervorragenden Bauqualität und der exklusiven Lage in der hinteren Baureihe zu machen.
Sichern Sie sich jetzt Ihren...
Anbieter der Immobilie
Marc Maier Immobilien
Rudolf-Diesel-Straße 33, 71394 Kernen

Online-ID: 2peql54
Referenznummer: MM- 2026-041
Finde Angebote wie dieses
Hier geht es zu unserem Impressum, den Allgemeinen Geschäftsbedingungen, den Hinweisen zum Datenschutz und nutzungsbasierter Online-Werbung.