
allkauf haus Südwest
Herr Nico Reichart
+49 ···
Nr. anzeigenPreise & Kosten
Provision für Käufer
Bitte beachte, das Angebot kann bei Vertragsabschluss die Zahlung einer Provision beinhalten. Weitere Informationen erhältst Du vom Anbieter.
Lage
Die Doppelhaushälfte befindet sich in Bubenheim, einer ruhigen und familienfreundlichen Lage mit guter Infrastruktur. Einkaufsmöglichkeiten, Schulen und öffentliche Verkehrsmittel sind bequem erreichbar. Freizeitangebote in der Natur sowie Sport- und Erholungsmöglichkeiten in der Umgebung runden die attraktive Lage ab und...
Das Haus
Kategorie
Doppelhaushälfte
Baujahr
2026
Energie & Heizung
Warum sehe ich diese Anzeige? – Du siehst diese Anzeige basierend auf Ihrer Navigation auf unserer Website und den Suchkriterien, die du verwendet hast.
Weitere Energiedaten
Haustyp
KfW 40
Heizungsart
Fußbodenheizung, Luft-/Wasser-Wärmepumpe
Details
Objektbeschreibung
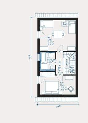
Diese projektiert geplante Doppelhaushälfte in Bubenheim bietet Ihnen mit 3.0 Zimmern auf einer Wohnfläche von 113,64 m² und zwei Etagen ein komfortables Zuhause, das ganz nach Ihren Wünschen und Vorstellungen gestaltet wird. Das großzügige 250 m² große Grundstück lädt zum Entspannen und Verweilen ein. Mit 2 Schlafzimmern...
Ausstattung
Die Ausstattung der Doppelhaushälfte ist gehoben und lässt keine Wünsche offen. Der Bodenbelag wird nach Ihren persönlichen Vorlieben ausgewählt - sei es Parkett, Laminat oder Fliesen, die alle durch ihre Langlebigkeit, Pflegeleichtigkeit und ästhetische Vielfalt überzeugen. Die Beheizung erfolgt mittels moderner Wärmepumpe...
Preisinformation
1 Garagenstellplatz, Kaufpreis: 8.000,00 EUR
Weitere Informationen
Sonstiges
allkauf steht seit über 35 Jahren für maximale Sicherheit, kurze Lieferzeiten und garantierte Fertigstellung. Mit unserem flexiblen Ausbaukonzept können Sie Ihr neues Zuhause ganz nach Ihren Vorstellungen selbst gestalten und dabei Kosten sparen. Unsere drei Dienstleistungspakete VIELBESCHÄFTIGTE, AMBITIONIERTE...
Anbieter der Immobilie
allkauf haus Südwest
Am Alten Schwimmbad 5, 66450 Bexbach
Online-ID: 2peqc56
Referenznummer: 3597-303-kw14-71305
Finde Angebote wie dieses
Hier geht es zu unserem Impressum, den Allgemeinen Geschäftsbedingungen, den Hinweisen zum Datenschutz und nutzungsbasierter Online-Werbung.