
Engel & Völkers Immobilien Deutschland GmbH
Engel & Völkers Berlin-Brandenburg MMC
+49 ···
Nr. anzeigenPreise & Kosten
Provision für Käufer
3.57 % inkl. gesetzl. MwSt. Weitere Informationen siehe Provisionshinweis.
Lage
Die Immobilie befindet sich im Berliner Ortsteil Lübars, einem der idyllischsten und grünsten Wohngebiete im Bezirk Reinickendorf. Der Ortsteil zeichnet sich durch seine dörfliche Atmosphäre, viel Natur und eine hohe Lebensqualität aus und gehört zu den besonders beliebten Wohnlagen im Norden Berlins.
In unmittelbarer...
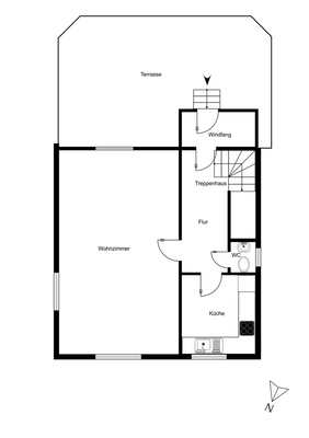
Das Haus
Kategorie
Einfamilienhaus
Baujahr
1936
Bezug
nach Vereinbarung
Energie & Heizung
Warum sehe ich diese Anzeige? – Du siehst diese Anzeige basierend auf Ihrer Navigation auf unserer Website und den Suchkriterien, die du verwendet hast.
Energieausweistyp
Bedarfsausweis
Gebäudetyp
Wohngebäude
Baujahr laut Energieausweis
1936
Gültigkeit
seit 16.10.2023
Effizienzklasse
G
Endenergiebedarf
228,12 kWh/(m²·a)
Weitere Energiedaten
Energieträger
Öl
Details
Objektbeschreibung
In idyllischer und naturnaher Lage im Berliner Ortsteil Lübars präsentiert sich dieses charmante Einfamilienhaus aus dem Baujahr 1936 als attraktives Zuhause für Paare oder kleine Familien. Die massiv errichtete Immobilie steht auf einem ca. 693 m² großen Grundstück und bietet vielfältiges Potenzial für individuelle...
Ausstattung
Einbauküche, Abstellkammer, Study
Weitere Informationen
Provisionshinweis
3.57 % inkl. gesetzl. MwSt.
Kommt auf Grundlage unserer Maklerleistung ein Kaufvertrag über das Objekt zustande, ist der Kunde verpflichtet, eine Maklerprovision in Höhe von 3,57 % einschließlich der gesetzlichen Umsatzsteuer zu zahlen. Die Berechnungsgrundlage für die Provision ist der Gesamtkaufpreis...
Anbieter der Immobilie
Online-ID: 2pelb55
Referenznummer: I-048OBI-W-048OBI
Finde Angebote wie dieses
Hier geht es zu unserem Impressum, den Allgemeinen Geschäftsbedingungen, den Hinweisen zum Datenschutz und nutzungsbasierter Online-Werbung.