
VON POLL IMMOBILIEN Kronberg im Taunus - Sascha Brombois
VON POLL IMMOBILIEN Shop Kronberg im Taunus
004 ···
Nr. anzeigenPreise & Kosten
Provision für Käufer
Käuferprovision beträgt 3,57 % (inkl. MwSt.) des beurkundeten Kaufpreises
Lage
Schwalbach befindet sich am südöstlichen Hang des Taunus. Frankfurt am Main ist ca. 12 km entfernt und auch mit öffentlichen Verkehrsmitteln leicht zu erreichen. Schwalbach liegt sehr ruhig und hat sich zu einem international tätigen Wirtschaftsstandort entwickelt. Viele Unternehmen haben hier ihren Sitz...
Das Haus
Kategorie
Einfamilienhaus
Baujahr
1965
Energie & Heizung
Warum sehe ich diese Anzeige? – Du siehst diese Anzeige basierend auf Ihrer Navigation auf unserer Website und den Suchkriterien, die du verwendet hast.
Energieausweistyp
Bedarfsausweis
Gebäudetyp
Wohngebäude
Baujahr laut Energieausweis
1965
Wesentliche Energieträger
ELECTRICITY
Gültigkeit
bis 23.03.2036
Effizienzklasse
C
Endenergiebedarf
75,30 kWh/(m²·a)
Weitere Energiedaten
Haustyp
Massivhaus
Heizungsart
Luft-/Wasser-Wärmepumpe, Zentralheizung
Details
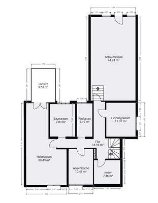
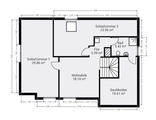
Objektbeschreibung
In allerbester Wohnlage von Schwalbach am Taunus befindet sich dieses helle, geräumige und zeitgemäß modernisierte, freistehende Einfamilienhaus.
Mit ca. 248m² Wohnfläche bietet es viel Platz für Familien, die gerne ruhig im Grünen leben und dennoch nah einer Metropole sein möchten. Das Haus besticht durch den sehr...
Ausstattung
.Zeitgemäß modernisiertes Haus
.Sehr gute, ruhige Lage in Schwalbach
.4 Schlafzimmer, 3 Bäder
.Großzügiger Wohn- / Essbereich
.Moderne offene Einbauküche
.Innenpool
.Sauna
.Gäste-WC
.Rund 30m² großer Hobbyraum
.Große Garage mit Wallbox
.Außenstellplatz
.2 Luft-Wasser-Wärmepumpen der Firma...
Preisinformation
1 Stellplatz
1 Garagenstellplatz
Weitere Informationen
Sonstiges
GELDWÄSCHE: Als Immobilienmaklerunternehmen ist die von Poll Immobilien GmbH nach § 2 Abs. 1 Nr. 14 und § 11 Abs. 1, 2 Geldwäschegesetz (GwG) dazu verpflichtet, bei der Begründung einer Geschäftsbeziehung die Identität des Vertragspartners festzustellen und zu überprüfen, bzw. sobald ein ernsthaftes Interesse an...
Anbieter der Immobilie
VON POLL IMMOBILIEN Kronberg im Taunus - Sascha Brombois
Friedrich-Ebert-Straße 8, 61476 Kronberg im Taunus
Online-ID: 2pel654
Referenznummer: 26 110 007
Finde Angebote wie dieses
Hier geht es zu unserem Impressum, den Allgemeinen Geschäftsbedingungen, den Hinweisen zum Datenschutz und nutzungsbasierter Online-Werbung.