

Immosuch GmbH
Firma iMMOSUCH GmbH
(03 ···
Nr. anzeigenPreise & Kosten
Provision für Käufer
7,14% inkl. MwSt.
Lage
Wilhelmshaven ist eine Hafenstadt in Niedersachsen an der Nordwestküste des Jadebusens westlich von Bremerhaven.
Die Stadt ist heute nicht nur der größte Standort der Marine, sondern der mit Abstand größte Standort der Bundeswehr. Auch ist die Marine der größte Arbeitgeber in der Stadt.
Wilhelmshavens Südstrand...
Das Haus
Kategorie
Mehrfamilienhaus
Baujahr
1942
Energie & Heizung
Warum sehe ich diese Anzeige? – Du siehst diese Anzeige basierend auf Ihrer Navigation auf unserer Website und den Suchkriterien, die du verwendet hast.
Weitere Energiedaten
Heizungsart
Zentralheizung
Details
Objektbeschreibung
Dieses gepflegte Mehrfamilienhaus in Wilhelmshaven vereint solide Bausubstanz, attraktive Raumaufteilungen und eine gefragte Lage in unmittelbarer Nähe zur Nordsee. Die lmmobilie eignet sich ideal für Kapitalanleger, die auf stabile Mieteinnahmen, Entwicklungspotenzial und eine nachhaltig interessante Mikrolage setzen...
Ausstattung
Kennzahlen:
- Wohnfläche gesamt: ca. 251 m²
- Grundstück: ca. 658 m²
- Baujahr: 1942
- Energiebedarf: 136,5 kWh/(m2"a)
- Energieeffizienzklasse: E
Kalkulkation / Rendite / Kaufpreise:
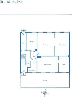
- EG: 88,30 m², Jahresnettomiete 10.596 EUR, Kaufpreis 198.675 EUR, Rendite 5,33%
- OG: 97,17 m²,...
Weitere Informationen
Sonstiges
Die von uns gemachten Angaben haben wir nach bestem Wissen und Gewissen sowie den uns vom Eigentümer zur Verfügung stehenden Informationen zusammengestellt. Eine Gewähr für diese Angaben können wir nicht übernehmen.
Wichtige Zahlen und Informationen sind am Objekt zu überprüfen.
Die Texte, Foto´s...
Anbieter der Immobilie

Online-ID: 2pee456
Referenznummer: DDB 8019
Finde Angebote wie dieses
Hier geht es zu unserem Impressum, den Allgemeinen Geschäftsbedingungen, den Hinweisen zum Datenschutz und nutzungsbasierter Online-Werbung.