
RICHERT & OERTEL IMMOBILIEN GMBH
Frau Jenny Völkel
035 ···
Nr. anzeigenPreise & Kosten
Provision für Käufer
3,57 % inkl. MwSt.
Lage
Die Wohnung befindet sich im beliebten Dresdner Stadtteil Striesen-Ost, einer der gefragtesten Wohnlagen der Stadt. Geprägt von grünen Alleen, ruhigen Seitenstraßen und einer sehr guten Infrastruktur, verbindet der Stadtteil angenehmes Wohnen mit urbaner Nähe. Einkaufsmöglichkeiten, Schulen, Kindergärten sowie zahlreiche...
Die Wohnung
Wohnungslage
Dachgeschoss
Derzeitige Nutzung
vermietet
Wohnanlage
Energie & Heizung
Warum sehe ich diese Anzeige? – Du siehst diese Anzeige basierend auf Ihrer Navigation auf unserer Website und den Suchkriterien, die du verwendet hast.
Energieausweistyp
Verbrauchsausweis
Gebäudetyp
Wohngebäude
Baujahr laut Energieausweis
1999
Gültigkeit
bis 29.06.2028
Effizienzklasse
C
Endenergieverbrauch
90,10 kWh/(m²·a)
Details
Objektbeschreibung
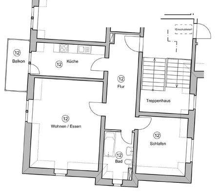
- 3-Raum-Wohnung
- Dachgeschoss
- Balkon an der Küche
- Tageslichtbad mit Badewanne
- inkl. Kellerabteil
- vermietet seit 01.08.2016
+++ Online-Exposé unter www.r-o.de/R_O24170 +++
Weitere Informationen
Sonstiges
Bei Abschluss eines notariellen Kaufvertrages hat der Käufer, sofern er im Rahmen einer gewerblichen Tätigkeit handelt, uns ein Honorar in Höhe von 6,96 % des Kaufpreises inkl. Mehrwertsteuer zu zahlen. Handelt der Käufer als Verbraucher gilt der Honorarsatz in Höhe von 3,57 % des Kaufpreises inkl...
Anbieter der Immobilie
RICHERT & OERTEL IMMOBILIEN GMBH
Tiergartenstraße 46, 01219 Dresden
Online-ID: 2peb955
Referenznummer: R_O 24170
Finde Angebote wie dieses
Hier geht es zu unserem Impressum, den Allgemeinen Geschäftsbedingungen, den Hinweisen zum Datenschutz und nutzungsbasierter Online-Werbung.