
allkauf haus GmbH
Herr Vitali Stettinger
+49 ···
Nr. anzeigenPreise & Kosten
Provision für Käufer
provisionsfrei
Lage
Das Einfamilienhaus befindet sich in einer attraktiven Wohngegend von Heusenstamm, die durch eine ausgezeichnete Infrastruktur besticht. In unmittelbarer Nähe finden Sie eine Apotheke, den Bahnhof, Grundschule, Kindergarten sowie eine weiterführende Schule. Diese Einrichtungen machen den Standort besonders familienfreundlich...
Das Haus
Kategorie
Einfamilienhaus
Baujahr
2027
Energie & Heizung
Warum sehe ich diese Anzeige? – Du siehst diese Anzeige basierend auf Ihrer Navigation auf unserer Website und den Suchkriterien, die du verwendet hast.
Weitere Energiedaten
Haustyp
KfW 40
Heizungsart
Fußbodenheizung, Luft-/Wasser-Wärmepumpe
Details
Objektbeschreibung
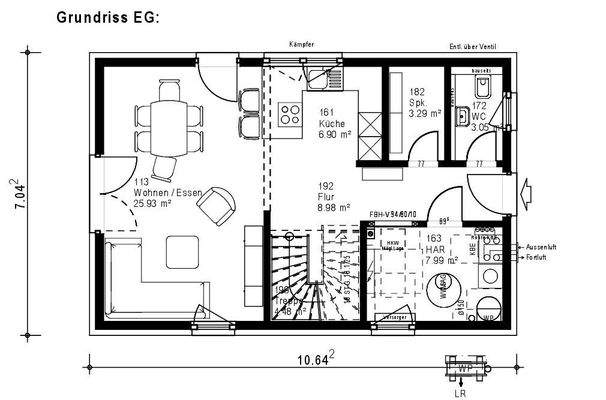
Wir präsentieren Ihnen ein projektiertes Einfamilienhaus in Heusenstamm, das ganz nach Ihren individuellen Wünschen und Vorstellungen geplant und gefertigt wird. Dieses großzügige Zuhause bietet mit 6 Zimmern auf 178 m² Wohnfläche ausreichend Raum für die ganze Familie und erstreckt sich über 3 Etagen. Mit 5 Schlafzimmern und...
Ausstattung
Das Haus ist mit hochwertigen Bodenbelägen aus Fliesen und Laminat ausgestattet, die nicht nur optisch ansprechend sind, sondern auch durch ihre Langlebigkeit und einfache Pflege überzeugen. Fliesen sind besonders robust und pflegeleicht, ideal für stark frequentierte Bereiche, während Laminat warm und wohnlich wirkt und sich...
Weitere Informationen
Sonstiges
allkauf steht für maximale Sicherheit, kurze Lieferzeiten und garantierte Fertigstellung. Mit unserem Dienstleistungspaket Free Time für Vielbeschäftigte, das bei diesem Haus bereits enthalten ist, übernehmen wir für Sie sämtliche Arbeiten rund um Trockenbau, Estrich, Sanitär, Heizung und Elektroinstallation. So...
Anbieter der Immobilie
allkauf haus GmbH
Ludwig Erhard Str. 2, 68162 Bad Vilbel
Online-ID: 2pe9g54
Referenznummer: 3019-13-kw11-77700 OFF FT
Finde Angebote wie dieses
Hier geht es zu unserem Impressum, den Allgemeinen Geschäftsbedingungen, den Hinweisen zum Datenschutz und nutzungsbasierter Online-Werbung.