

Schube Immobilien & Wertgutachten
Frau Katy Schube
076 ···
Nr. anzeigenPreise & Kosten
Provision für Käufer
Die Käuferprovision beträgt 3,57 % inkl. Mehrwertsteuer
Lage
Die Immobilie befindet sich in Ballrechten-Dottingen, einer charmanten Weinbaugemeinde im südlichen Markgräflerland in Baden-Württemberg.
Die Region ist bekannt für ihre malerischen Weinberge, ihr mildes Klima und ihre hohe Lebensqualität. Die naturnahe Umgebung sowie die Nähe zu den Städten Müllheim und Freiburg im...
Das Haus
Kategorie
Einfamilienhaus
Baujahr
1827
Bezug
01.08.2026
Energie & Heizung
Warum sehe ich diese Anzeige? – Du siehst diese Anzeige basierend auf Ihrer Navigation auf unserer Website und den Suchkriterien, die du verwendet hast.
Energieausweistyp
Verbrauchsausweis
Gebäudetyp
Wohngebäude
Baujahr laut Energieausweis
1827
Wesentliche Energieträger
Holzpellets
Gültigkeit
01.03.2026 bis 01.03.2036
Effizienzklasse
C
Endenergieverbrauch
83,70 kWh/(m²·a)
Weitere Energiedaten
Energieträger
Pellets
Heizungsart
Fußbodenheizung, Zentralheizung
Details
Objektbeschreibung
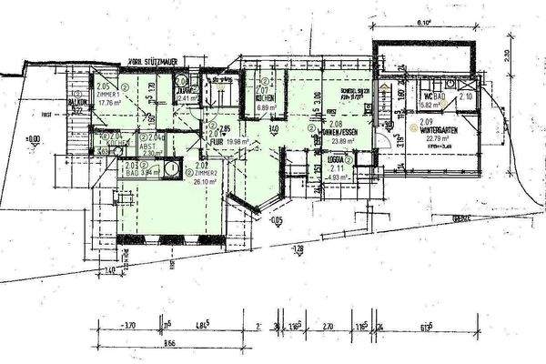
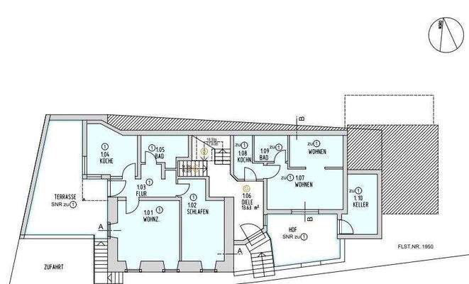
Historisches Zweifamilienhaus mit idyllischem Garten im Markgräflerland
Dieses außergewöhnliche Zweifamilienhaus aus dem Baujahr 1827 verbindet historischen Charme mit großzügigem Wohnraum und einer einzigartigen Atmosphäre. Ursprünglich als Winzerhof errichtet, bewahrt das Gebäude bis heute seinen besonderen Charakter...
Ausstattung
Heizung/Warmwasseraufbereitung:
Das Haus bietet eine moderne Pelletheizung, die im Jahr 2021 installiert wurde und effiziente Wärme erzeugt, wobei in sehr vielen Räumen Fußbodenheizung für wohltuende Wärme sorgt.
Weitere Informationen
Sonstiges
Zögern Sie nicht, uns zu kontaktieren – wir freuen uns darauf, Ihnen die Vorzüge dieser Immobilie näherzubringen. Gerne vereinbaren wir einen Besichtigungstermin, der Ihnen einen umfassenden Eindruck verschafft.
Heizungsart:
Heizkoerper
Anbieter der Immobilie
Schube Immobilien & Wertgutachten
Waldhofstr. 52, 79117 Freiburg

Online-ID: 2pe9752
Referenznummer: 79282_33a
Finde Angebote wie dieses
Hier geht es zu unserem Impressum, den Allgemeinen Geschäftsbedingungen, den Hinweisen zum Datenschutz und nutzungsbasierter Online-Werbung.