
BEST PLACE Immobilien GmbH & Co. KG
Ihr Best Place Vertriebsteam Frankfurt
004 ···
Nr. anzeigenPreise & Kosten
Provision für Käufer
provisionsfrei
Lage
Wer hier wohnt, hat einige der spannendsten Stadtviertel unmittelbar vor der Haustür. Das feine, baumbestandene Westend. Die schicke Innenstadt mit Opernplatz, belebten Cafés und noblen Shops. Das junge Europaviertel mit Skyline Plaza und bester Infrastruktur. Das Bankenviertel mit seinen schillernden Türmen und das kreative...
Wohnanlage
Energie & Heizung
Warum sehe ich diese Anzeige? – Du siehst diese Anzeige basierend auf Ihrer Navigation auf unserer Website und den Suchkriterien, die du verwendet hast.
Energieausweistyp
Bedarfsausweis
Gebäudetyp
Wohngebäude
Baujahr laut Energieausweis
2023
Wesentliche Energieträger
FERN
Gültigkeit
bis 25.04.2033
Effizienzklasse
C
Endenergiebedarf
77,27 kWh/(m²·a)
Weitere Energiedaten
Energieträger
Fernwärme
Heizungsart
Fußbodenheizung
Details
Objektbeschreibung
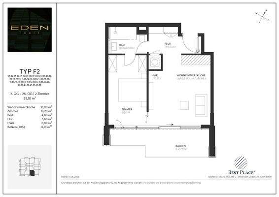
Hoch hinaus wohnen - mitten in Frankfurt! Diese bezugsfreie 2-Zimmer-Wohnung im Eden Tower vereint zeitloses Design mit erstklassigem Komfort auf 52,10 m² Wohnfläche. Genießen Sie den Ausblick durch raumhohe Panoramafenster oder entspannen Sie auf dem eigenen Balkon. Echtholz-Parkett, Fußbodenheizung und exklusive...
Ausstattung
.Hochhaus mit begrünter Fassade
.Lobby
.24/7 Concierge
.Hauseigenes Gym
.Gemeinschafts-Dachterrasse
.Panoramafenster
.Echtholz-Parkett
.Fußbodenheizung
.Exklusive Ausstattungslinien
.Aufzug
Weitere Informationen
Stichworte
Tiefgarage vorhanden, vermietbare Fläche: 52,10 m², Bundesland: Hessen, 27 Etagen, Wohnungsnr.: WE 2606
Anbieter der Immobilie
Online-ID: 2pe7j55
Referenznummer: EDEN-WE2606
Finde Angebote wie dieses
Hier geht es zu unserem Impressum, den Allgemeinen Geschäftsbedingungen, den Hinweisen zum Datenschutz und nutzungsbasierter Online-Werbung.