
DEN Investments GmbH
Herr Deniz Alexander Enüstün
+49 ···
Nr. anzeigenPreise & Kosten
Provision für Käufer
4,76%
Die Maklercourtage beträgt 4,76% vom Kaufpreis inkl. gesetzlicher MwSt.
Lage
1A-Lage
Die Immobilie befindet sich in verkehrsgünstiger Lage im Gewerbegebiet von Waghäusel-Wiesental.
Der Standort zeichnet sich durch seine unmittelbare Nähe zu etablierten Gewerbeansiedlungen sowie durch eine sehr gute infrastrukturelle Anbindung aus.
Besonders hervorzuheben ist die direkte Nachbarschaft...
Die Wohnung
Bezug
Absprache
Wohnanlage
Energie & Heizung
Warum sehe ich diese Anzeige? – Du siehst diese Anzeige basierend auf Ihrer Navigation auf unserer Website und den Suchkriterien, die du verwendet hast.
Weitere Energiedaten
Heizungsart
Fußbodenheizung, Luft-/Wasser-Wärmepumpe
Details
Objektbeschreibung
Secret Sale - diskrete Vermarktung
Diese Immobilie wird bewusst ohne öffentliche Bilddarstellung angeboten. Detaillierte Objektunterlagen, Bilder, eine Drohnenaufnahme sowie eine 360°-Tour erhalten Sie exklusiv nach Ihrer Anfrage.
Bei der angebotenen Liegenschaft handelt es sich um eine hochwertige, im Jahr...
Ausstattung
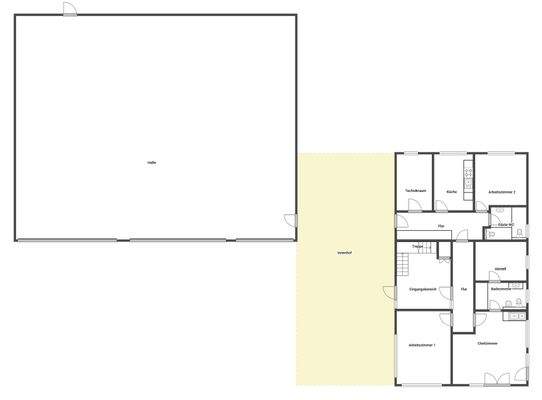
? Mischimmobilie: Gewerbehalle + Büro + Betriebsleiterwohnung
? Grundstück ca. 2.024 m² - ideal für Fuhrpark & gewerbliche Nutzung
? Freistehende Halle ca. 302 m² mit Fußbodenheizung
? Photovoltaikanlage auf der Halle (ca. 35 kWp)
? Büroeinheit im EG ca. 130 m² mit 2 Arbeitszimmern
? Separates Chefzimmer...
Preisinformation
15 Stellplätze
Nettorendite Soll in %: 5,03
Soll-Mieteinnahmen pro Jahr: 88.000,00 EUR
Weitere Informationen
Sonstiges
Hinweis zur Wasserversorgung:
Die Wasserversorgung der Immobilie erfolgt derzeit über das Leitungsnetz des benachbarten Globus-Marktes. Die anfallenden Wasserkosten werden entsprechend weiterbelastet.
Der Eingangsbereich des Gebäudes wurde so konzipiert, dass eine Nachrüstung eines innenliegenden...
Anbieter der Immobilie
DEN Investments GmbH
Leipziger Str. 6, 76297 Stutensee
Online-ID: 2pdyx57
Referenznummer: ID-2044
Finde Angebote wie dieses
Hier geht es zu unserem Impressum, den Allgemeinen Geschäftsbedingungen, den Hinweisen zum Datenschutz und nutzungsbasierter Online-Werbung.