
ohne-makler.net - Immobilien selbst vermarkten
Privat von Julia Braun
Kontaktiere den Anbieter schriftlich, es ist keine Telefonnummer hinterlegt.
Preise & Kosten
Provision für Käufer
provisionsfrei
Lage
Fußläufig erreichbar sind Kindergärten, Grundschule, Realschule, die neue FOS Oberhaching (Schulcampus Oberhaching) und Einkaufsmöglichkeiten. Gymnasium und Mittel-/Wirtschaftsschule, Ärzte, Apotheken, sowie weitere Einkaufsmöglichkeiten sind in 5 Autominuten zu erreichen.
Bushaltestellen sind in unmittelbarer Nähe. Die...
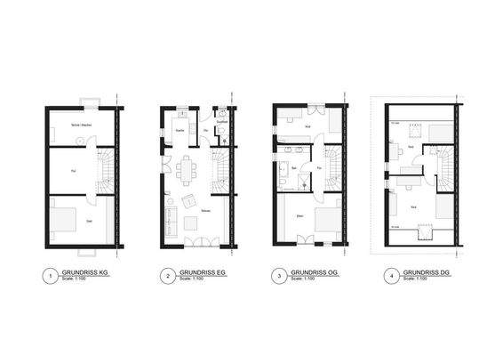
Das Haus
Kategorie
Reihenendhaus
Baujahr
2019
Bezug
sofort
Energie & Heizung
Warum sehe ich diese Anzeige? – Du siehst diese Anzeige basierend auf Ihrer Navigation auf unserer Website und den Suchkriterien, die du verwendet hast.
Energieausweistyp
Verbrauchsausweis
Gebäudetyp
Wohngebäude
Effizienzklasse
A
Endenergieverbrauch
39,00 kWh/(m²·a)
Weitere Energiedaten
Energieträger
Fernwärme
Heizungsart
Fußbodenheizung
Details
Objektbeschreibung
Dieses im Jahr 2019 errichtete, moderne Eckhaus befindet sich im schönen und ruhigen Ortsteil Deisenhofen in Oberhaching. Die Immobilie hat einen hohen Wohnkomfort, eine durchdachte Raumaufteilung sowie eine familienfreundliche Umgebung und ist ideal für Familien geeignet. Das Haus befindet sich in einem sehr gepflegten...
Ausstattung
Balkon, Terrasse, Garten, Keller, Vollbad, Duschbad, Einbauküche, Gäste-WC, Parkett, Fliesen
Bemerkungen:
Sämtliche Vollgeschosse (inklusive Keller) haben eine Raumhöhe von ca. 2,65m.
Im gesamten Haus sind edle Eichendielen verlegt; im Eignangsbereich, in den Bädern sowie in der Waschküche hochwertiges...
Preisinformation
1 Stellplatz
1 Garagenstellplatz
Weitere Informationen
Sonstiges
Heizungsart: Fußbodenheizung
Energieträger: Fernwärme
Makleranfragen nicht erwünscht. Nach § 7 UWG sind unaufgeforderte Kontaktaufnahmen durch Makler ohne ausdrückliche Einwilligung des Empfängers verboten!
ohne-makler (OM) ist weder Anbieter noch Vermittler der Immobilie. OM betreibt eine...
Anbieter der Immobilie
ohne-makler.net - Immobilien selbst vermarkten
Humboldtstr. 25 A, 21509 Glinde
Privat von Julia Braun
Dein Ansprechpartner
Kontaktiere den Anbieter schriftlich, es ist keine Telefonnummer hinterlegt.
Online-ID: 2pdup52
Referenznummer: 433776
Finde Angebote wie dieses
Hier geht es zu unserem Impressum, den Allgemeinen Geschäftsbedingungen, den Hinweisen zum Datenschutz und nutzungsbasierter Online-Werbung.