

FUHRMANN Hausverwaltung & Immobilien
Herr Steffen Seelig
+49 ···
Nr. anzeigenPreise & Kosten
Kaution
3.240,00
Warum sehe ich diese Anzeige? – Du siehst diese Anzeige basierend auf Ihrer Navigation auf unserer Website und den Suchkriterien, die du verwendet hast.
Lage
Die angebotenen Etagenwohnungen befinden sich in der charmanten Stadt Gunzenhausen, eingebettet im malerischen fränkischen Seenland, einer der gefragtesten Regionen in Deutschland für Natur- und Wasserfreunde. Diese Region bietet eine Vielzahl an Möglichkeiten für Outdoor-Aktivitäten: Ob Wassersportarten, wie Segeln...
Die Wohnung
Bezug
01.05.26 / 01.06.26
Derzeitige Nutzung
frei
Wohnanlage
Energie & Heizung
Warum sehe ich diese Anzeige? – Du siehst diese Anzeige basierend auf Ihrer Navigation auf unserer Website und den Suchkriterien, die du verwendet hast.
Energieausweistyp
Verbrauchsausweis
Gebäudetyp
Wohngebäude
Baujahr laut Energieausweis
1971
Wesentliche Energieträger
Erdgas
Gültigkeit
23.03.2026 bis 23.03.2036
Effizienzklasse
G
Endenergieverbrauch
211,00 kWh/(m²·a) - Warmwasser enthalten
Weitere Energiedaten
Energieträger
Gas
Heizungsart
Etagenheizung, Fußbodenheizung
Details
Objektbeschreibung
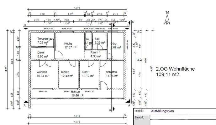
Gunzenhausen | 5-Zimmer-Wohnung im 2. OG (ca. 109 m²) mit großem Süd-Balkon, Garage & Keller - Erstbezug nach Renovierung
Willkommen in Ihrem neuen Zuhause in Gunzenhausen: Diese renovierte Etagenwohnung im 2. Obergeschoss verbindet zeitgemäßen Wohnkomfort mit einem durchdachten Grundriss - ideal für Paare mit...
Ausstattung
Die Wohnung überzeugt durch eine moderne, komfortorientierte Ausstattung: Eine neue, energieeffiziente Gasetagenheizung in Kombination mit Fußbodenheizung in der gesamten Wohnung sorgt ganzjährig für ein angenehmes Raumklima. Zweifach verglaste Fenster und Rollos in allen Räumen bieten zusätzlichen Wohnkomfort sowie guten...
Preisinformation
1 Garagenstellplatz, Miete: 70,00 EUR
Weitere Informationen
Sonstiges
5-Zimmer-Wohnung im 2. OG (ca. 109 m²) mit großem Süd-Balkon, Garage & Keller - Erstbezug nach Renovierung
Die Gesamtkaltmiete beträgt 1.150,00 € monatlich - inklusive Einbauküche und Garage (70 €). Zuzüglich ist eine Nebenkostenvorauszahlung in Höhe von 250,00 € monatlich zu leisten. Damit ergibt sich...
Anbieter der Immobilie
FUHRMANN Hausverwaltung & Immobilien
Am Steinfeld 21, 91710 Gunzenhausen

Online-ID: 2pdtb54
Referenznummer: 2023302
Finde Angebote wie dieses
Hier geht es zu unserem Impressum, den Allgemeinen Geschäftsbedingungen, den Hinweisen zum Datenschutz und nutzungsbasierter Online-Werbung.