
Crozilla.com
Materra Real Estate
+38 ···
Nr. anzeigenPreise & Kosten
Provision für Käufer
Bitte beachte, das Angebot kann bei Vertragsabschluss die Zahlung einer Provision beinhalten. Weitere Informationen erhältst Du vom Anbieter.
Die Immobilie
Zu diesem Angebot wurden vom Anbieter keine weiteren Daten hinterlegt. Für weitere Informationen bitte den Anbieter kontaktieren.
Nach Informationen fragenDetails
Objektbeschreibung
Zum Verkauf steht ein zweistöckiges Haus in einem Neubauprojekt. Das Haus befindet sich derzeit im Bau, was eine individuelle Anpassung nach den Wünschen des Käufers ermöglicht.
Die Gesamtfläche des Hauses beträgt 71,75 m².
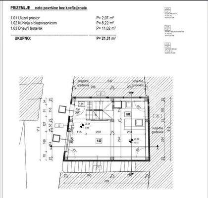
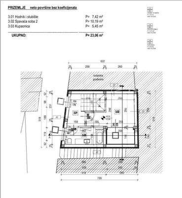
HAUSPLAN:
Erdgeschoss - offener Raum mit Küche, Essbereich und...
Weitere Informationen
Stichworte
Anzahl der Schlafzimmer: 2, 1 Etagen
Anbieter der Immobilie
Crozilla.com
Nova cesta 60, 10000 ZAGREB
Online-ID: 2pdsb53
Referenznummer: 19217138_1
Finde Angebote wie dieses
Hier geht es zu unserem Impressum, den Allgemeinen Geschäftsbedingungen, den Hinweisen zum Datenschutz und nutzungsbasierter Online-Werbung.