
Decus Immobilien GmbH
Frau Laura Kowalczyk
+43 ···
Nr. anzeigenPreise & Kosten
Kaution
3 Bruttomonatsmieten
Provision für Mieter
Gemäß Erstauftraggeberprinzip bezahlt der Abgeber die Provision.
Warum sehe ich diese Anzeige? – Du siehst diese Anzeige basierend auf Ihrer Navigation auf unserer Website und den Suchkriterien, die du verwendet hast.
Das Haus
Kategorie
Doppelhaushälfte
Baujahr
1930
Energie & Heizung
Warum sehe ich diese Anzeige? – Du siehst diese Anzeige basierend auf Ihrer Navigation auf unserer Website und den Suchkriterien, die du verwendet hast.
Heizwärmebedarf (HWB)
136,50 kWh/(m²·a)
Gesamtenergieeffizienz (fGEE)
4,14
Weitere Energiedaten
Energieträger
Elektro
Details
Objektbeschreibung
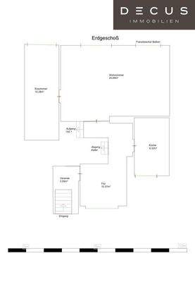
Sanierungsbedürftige Doppelhaushälfte mit Garten im 23. Bezirk - viel Potenzial zur individuellen Gestaltung
Highlights
Großes Gestaltungspotenzial: Ideal für Mieter, die ihre Wohnräume nach eigenen Vorstellungen gestalten möchten.
Garten vorhanden: Bietet Platz zum Entspannen, Spielen oder für persönliche...
Weitere Informationen
Stichworte
Süd-Balkon/Terrasse, Nutzfläche: 139,00 m², Anzahl der Badezimmer: 1, Anzahl der separaten WCs: 2, Anzahl Balkone: 2, Balkon-Terrassen-Fläche: 2,59 m², Gartenfläche: 157,00 m², Kellerfläche: 34,80 m², Bundesland: Wien, 2 Etagen
Anbieter der Immobilie
Decus Immobilien GmbH
Kärtner Straße 39/Annagasse 1, 1010 WIEN
Online-ID: 2pdfw53
Referenznummer: OBGC202603171042563702ebe6ec688
Finde Angebote wie dieses
Hier geht es zu unserem Impressum, den Allgemeinen Geschäftsbedingungen, den Hinweisen zum Datenschutz und nutzungsbasierter Online-Werbung.