

HIM Hanseatischer Immobilienmakler GmbH
Herr Erhan Karasu
040 ···
Nr. anzeigenPreise & Kosten
Provision für Käufer
3,57 % inkl. gesetzl. MwSt. vom Kaufpreis zu zahlen jeweils vom Käufer und Verkäufer
Die Maklercourtage beträgt je 3,57 % inkl. gesetzl. MwSt. vom Kaufpreis und ist nach Vertragsabschluss jeweils vom Käufer und Verkäufer an unsere Firma zu entrichten.
Lage
Umgeben von den Stadtteilen Hummelsbüttel, Fuhlsbüttel und Norderstedt liegt im Norden Hamburgs der Stadtteil Langenhorn. Langenhorn ist wegen des angrenzenden Flughafens ein attraktiver Stadtteil mit guter Infrastruktur. Das Krohnstiegcenter, das LaHoMa Living Plaza und die U-Bahnhaltestelle "Langenhorn Markt" sind nur 100 m...
Die Immobilie
Zu diesem Angebot wurden vom Anbieter keine weiteren Daten hinterlegt. Für weitere Informationen bitte den Anbieter kontaktieren.
Nach Informationen fragenDetails
Objektbeschreibung
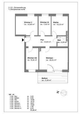
Zu kaufen ist eine vermietete 4-Zimmer Wohnung mit einer Wohnfläche von ca. 81,38 m² im 1.OG in Langenhorn. Die helle Wohnung verfügt über ein großes Wohnzimmer mit Balkon. Die weiteren drei Zimmer teilen sich auf in ein Schlaf- und zwei Kinderzimmer. Die Wohnung wurde 2017 umfangreich saniert, neues Badezimmer, neue...
Ausstattung
- vermietete 4-Zimmer Wohnung mit Balkon
- umfangreiche Sanierung aus 2017
- Kellerraum und Fahrradabstellraum
- Mieteinnahmen € 1.092 € kalt zzgl. € 269,- Betriebskosten (inkl. Staffelmiete)
- Energiebedarf: 51,8 kWh/(m²a) gültig bis 06/2027, Nah-/Fernwärme
Weitere Informationen
Sonstiges
Sehr gern lassen wir Ihnen ein ausführliches Exposé mit weiteren Fotos und dem Grundriss/Lageplan zukommen.
Bitte teilen Sie uns hierzu Ihre vollständigen Kontaktdaten (Anschrift und Telefonnummer) mit, Ihre Daten werden selbstverständlich vertraulich behandelt.
Alle Angaben über diese Immobilie...
Anbieter der Immobilie
HIM Hanseatischer Immobilienmakler GmbH
Pickhuben 5, 20457 Hamburg

Online-ID: 2pdee54
Referenznummer: 21638
Finde Angebote wie dieses
Hier geht es zu unserem Impressum, den Allgemeinen Geschäftsbedingungen, den Hinweisen zum Datenschutz und nutzungsbasierter Online-Werbung.