
Crozilla.com
Matrix Real Estate
+38 ···
Nr. anzeigenPreise & Kosten
Provision für Käufer
Bitte beachte, das Angebot kann bei Vertragsabschluss die Zahlung einer Provision beinhalten. Weitere Informationen erhältst Du vom Anbieter.
Das Haus
Baujahr
2024
Details
Objektbeschreibung
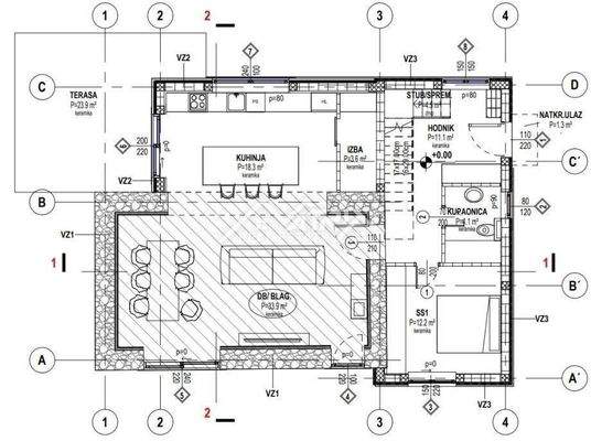
Ein Haus mit Pool steht zum Verkauf und befindet sich derzeit im Bau. Die Immobilie liegt in einem authentischen istrischen Dorf, nicht weit von Svetvincenat, das für seine reiche Geschichte, gastronomischen Angebote und vielfältigen Veranstaltungen im Laufe des Jahres bekannt ist.
Das Haus befindet sich momentan in der...
Weitere Informationen
Stichworte
Anzahl der Schlafzimmer: 3, Anzahl der Badezimmer: 2, 1 Etagen
Anbieter der Immobilie
Crozilla.com
Nova cesta 60, 10000 ZAGREB
Online-ID: 2pdd556
Referenznummer: 19214038_0
Finde Angebote wie dieses
Hier geht es zu unserem Impressum, den Allgemeinen Geschäftsbedingungen, den Hinweisen zum Datenschutz und nutzungsbasierter Online-Werbung.