
McMakler GmbH
Ihr McMakler Team
080 ···
Nr. anzeigenPreise & Kosten
Provision für Käufer
Die Provision i.H.v. 3,57 % inkl. MwSt. ist mit Kaufvertragsbeurkundung fällig, sofern der Verkaufspreis über 83.000,00 € liegt.
Liegt der Verkaufspreis dagegen bei/unter 83. Weitere Informationen siehe Provisionshinweis.
Lage
Lage: Attraktive Lage in Oberhaid mit besten Bedingungen für Eigennutzer oder Anleger
Bildung und Betreuung: In max. 15 Fahrradminuten Schule und Kindergarten für die Jüngsten erreichbar
Nahversorgung: Rund 6 km zu wichtigen Anlaufstellen wie Supermärkten, Apotheken, Postfilialen und Bankfilialen
Anbindung: Autobahn...
Das Haus
Kategorie
Einfamilienhaus
Baujahr
1958
Bezug
ab sofort
Energie & Heizung
Warum sehe ich diese Anzeige? – Du siehst diese Anzeige basierend auf Ihrer Navigation auf unserer Website und den Suchkriterien, die du verwendet hast.
Energieausweistyp
Bedarfsausweis
Gebäudetyp
Wohngebäude
Baujahr laut Energieausweis
1958
Wesentliche Energieträger
Gas
Effizienzklasse
G
Endenergiebedarf
229,20 kWh/(m²·a)
Weitere Energiedaten
Energieträger
Gas
Heizungsart
Zentralheizung
Details
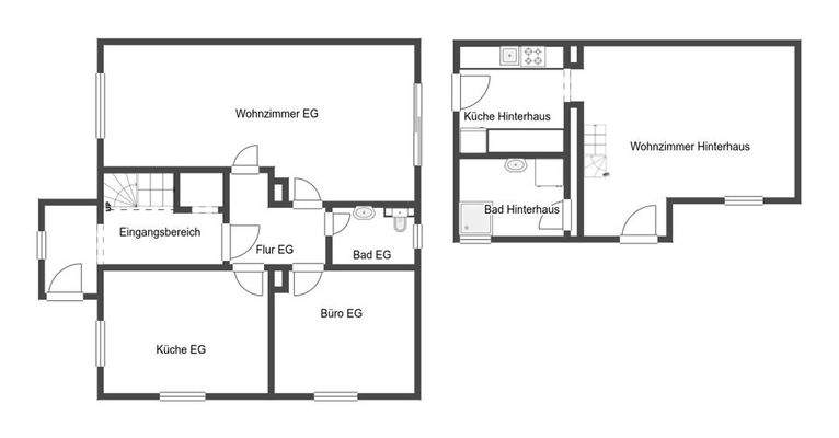
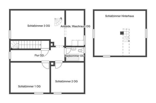
Objektbeschreibung
Objektnr: 1070994
Diese vielseitige Immobilie bietet ein außergewöhnliches Gesamtpaket. Das Anwesen befindet sich auf einem großzügigen Grundstück mit einer Gesamtfläche von ca. 1.110 m², von denen rund 500 m² als separates Baugrundstück nutzbar wären und damit ein attraktives Entwicklungspotenzial bieten.
Das...
Ausstattung
+ Großzügiges Grundstück mit Entwicklungspotenzial - ca. 1.110 m² Gesamtfläche
+ Rund 500 m² als separates Baugrundstück nutzbar
+ Modernisiertes Haupthaus - neue Gasheizung, moderne Fenster, Kanalanschluss erneuert
+ Zusätzliches, bewohnbares Nebengebäude auf dem Grundstück (separate Zähler vorhanden)
+ Flexible...
Weitere Informationen
Provisionshinweis
Die Provision i.H.v. 3,57 % inkl. MwSt. ist mit Kaufvertragsbeurkundung fällig, sofern der Verkaufspreis über 83.000,00 € liegt.
Liegt der Verkaufspreis dagegen bei/unter 83.000,00 €, ist die fest vereinbarte Mindestprovision i.H.v. mind. 5.950,00 € inkl. MwSt. mit Kaufvertragsbeurkundung fällig...
Anbieter der Immobilie
McMakler GmbH
Am Postbahnhof 17, 10243 Berlin
Online-ID: 2pdbs53
Referenznummer: 336cd51d12
Finde Angebote wie dieses
Hier geht es zu unserem Impressum, den Allgemeinen Geschäftsbedingungen, den Hinweisen zum Datenschutz und nutzungsbasierter Online-Werbung.