
IC IMMOCONSULT e.K.
Herr Ron Kaufmann
+49 ···
Nr. anzeigenPreise & Kosten
Provision für Käufer
7,14 inkl. MwSt.
Der Käufer verpflichtet sich, bei Abschluss eines Kaufvertrags eine einmalige Maklerprovision in o.g. Höhe aus dem Gesamtentgelt für das Auftragsobjekt an den Makler zu zahlen. Weitere Informationen siehe Provisionshinweis.
Abschreibung/Anlage
Denkmalschutz-Afa
Lage
Das angebotene Mehrfamilienhaus befindet sich in Altenburg. Altenburg liegt in der Mitte des Städtedreiecks Leipzig-Chemnitz-Gera; 39 km südlich von Leipzig, 38 km nordwestlich von Chemnitz, 28 km nordöstlich von Gera und 31 km nördlich von Zwickau.
In unmittelbarer Nähe befinden sich diverse Einkaufsmöglichkeiten, der...
Das Renditeobjekt
Kategorie
Mehrfamilienhaus
Baujahr
1860
Details
Objektbeschreibung
Leerstehendes Mehrfamilienhaus mit Denkmalschutz und Planungsunterlagen für eine Baugenehmigung.
Die Baugenehmigung ist noch nicht eingereicht, bzw. erteilt worden.
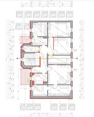
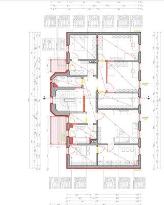
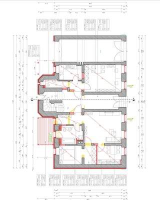
Die Grundrisse der Planungsunterlagen finden Sie im Exposé.
Ausstattung
- leerstehendes Mehrfamilienhaus
- Baujahr ca. 1860
- Wohnfläche ca. 480 m²
- Grundstücksgröße ca. 379 m²
- Parkmöglichkeiten bietet der öffentliche Straßenraum
Weitere Informationen
Provisionshinweis
7,14 inkl. MwSt.
Der Käufer verpflichtet sich, bei Abschluss eines Kaufvertrags eine einmalige Maklerprovision in o.g. Höhe aus dem Gesamtentgelt für das Auftragsobjekt an den Makler zu zahlen. Die Provision wird bei Vertragsabschluss fällig. Als Vertragsabschluss gilt die Beurkundung des...
Anbieter der Immobilie
IC IMMOCONSULT e.K.
Hillerstraße 3, 04109 Leipzig
Online-ID: 2pd8r53
Referenznummer: 849k36#yWqe1d
Finde Angebote wie dieses
Hier geht es zu unserem Impressum, den Allgemeinen Geschäftsbedingungen, den Hinweisen zum Datenschutz und nutzungsbasierter Online-Werbung.