
RENSCH-HAUS GMBH
Herr Michael Liese
+49 ···
Nr. anzeigenPreise & Kosten
Provision für Käufer
provisionsfrei
Lage
Moringen:
lebendig, familienfreundlich und facettenreich - in wenigen Autominuten in Göttingen.
Mitten im Herzen Südniedersachsens zwischen Harz und Weser liegt mit einer Fläche von 82,25 qkm die Stadt Moringen, zentral im Landkreis Northeim.
Kinderhort, Kindertagesstätten sowie Ärzte, Apotheken, Optiker...
Das Haus
Kategorie
Einfamilienhaus
Baujahr
2026
Energie & Heizung
Warum sehe ich diese Anzeige? – Du siehst diese Anzeige basierend auf Ihrer Navigation auf unserer Website und den Suchkriterien, die du verwendet hast.
Weitere Energiedaten
Haustyp
KfW 40
Heizungsart
Luft-/Wasser-Wärmepumpe, Zentralheizung
Details
Objektbeschreibung
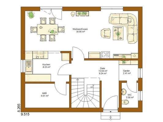
Dieses Einfamilienhaus, hier mit drittem Giebel versehen, ist das Aushängeschild zeitlos klassischer Architektur. Der dritte Giebel bringt nicht nur Platz, sondern auch zusätzliches Tageslicht in die Räume des Dachgeschosses. Ebenso reizvoll sind die offen gehaltenen und ineinanderfließenden Flächen von Kochen, Essen und...
Ausstattung
Die vorgestellte Projektierung umfasst Leistungen entsprechend der Bau- und Leistungsbeschreibung CONCEPT als Grundlage für die weitere Planung und Kalkulation. In definierten Ausbaustufen werden hier umfangreiche Leistungen dargestellt - übersichtlich und transparent. Treffen Sie Ihre ganz persönliche Wahl: vom Ausbauhaus...
Weitere Informationen
Sonstiges
Alle Daten zum dargestellten Baugrundstück beruhen auf Angaben des Eigentümers. Angebot und Zwischenverkauf sind freibleibend.
Bei der Erstellung Ihres Hauses von RENSCH-HAUS stehen wir Ihnen als kompetenter Partner zur Seite. Vertrauen Sie dabei auf unsere Erfahrung und unseren Service, vom Keller bis zum...
Anbieter der Immobilie
RENSCH-HAUS GMBH
Mottener Straße 13, 36148 Kalbach-Uttrichshausen
Online-ID: 2pcx354
Referenznummer: 72273-540
Finde Angebote wie dieses
Hier geht es zu unserem Impressum, den Allgemeinen Geschäftsbedingungen, den Hinweisen zum Datenschutz und nutzungsbasierter Online-Werbung.