

Rainer Digwa GmbH & Co. KG
Frau Kathrin Digwa
051 ···
Nr. anzeigenPreise & Kosten
Kaution
6.600
Warum sehe ich diese Anzeige? – Du siehst diese Anzeige basierend auf Ihrer Navigation auf unserer Website und den Suchkriterien, die du verwendet hast.
Lage
Die Wohnung in der Baumschulenstraße 93 befindet sich im beliebten Berliner Ortsteil Baumschulenweg im Bezirk Treptow-Köpenick. Die Lage überzeugt durch eine angenehme Kombination aus ruhigem Wohnen und sehr guter Verkehrsanbindung.
Der S-Bahnhof Baumschulenweg ist nur wenige Gehminuten entfernt und ermöglicht eine...
Die Wohnung
Kategorie
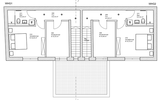
Maisonette
Bezug
01.07.2026
Wohnanlage
Energie & Heizung
Warum sehe ich diese Anzeige? – Du siehst diese Anzeige basierend auf Ihrer Navigation auf unserer Website und den Suchkriterien, die du verwendet hast.
Energieausweis: für diesen Gebäudetyp nicht notwendig
Weitere Energiedaten
Energieträger
Elektro
Haustyp
KfW 70
Heizungsart
Fußbodenheizung, Luft-/Wasser-Wärmepumpe, Zentralheizung
Details
Objektbeschreibung
Das Gebäude aus dem Jahr 1905 wurde in den letzten zehn Monaten umfassend entkernt und renoviert. Es erstrahlt nun in neuem Glanz und bietet zwei energieeffiziente Haushälften, die jeweils rund 91 m² Wohnfläche aufweisen. Hier angeboten wird die Wohnung Nr. 2. Ab dem 7. April 2026 werden zudem Fotos zur Verfügung stehen, da...
Ausstattung
Die großzügige, lichtdurchflutete Wohnung erstreckt sich über zwei Etagen und bietet ein ideales Zuhause für Familien, Pärchen oder auch Singles. Der offene Wohn- und Essbereich, der zur Terrasse und dem einladend neugestalteten Garten führt, schafft eine harmonische Verbindung zwischen Innen- und Außenraum.
Drei...
Weitere Informationen
Wir sind derzeit noch in der finalen Bauphase mit Fertigstellung im Juni 2026 und Bezugsfertigkeit zum 1.7.2026. Gerne können wir uns die Wohnung gemeinsam ansehen. Sie erreichen mich unter 05138-4813308.
Anbieter der Immobilie
Rainer Digwa GmbH & Co. KG
Hauptstr. 14, 31319 Sehnde

Online-ID: 2pcuw56
Referenznummer: BSS
Finde Angebote wie dieses
Hier geht es zu unserem Impressum, den Allgemeinen Geschäftsbedingungen, den Hinweisen zum Datenschutz und nutzungsbasierter Online-Werbung.