
ohne-makler.net - Immobilien selbst vermarkten
Privat vom Eigentümer
Kontaktiere den Anbieter schriftlich, es ist keine Telefonnummer hinterlegt.
Preise & Kosten
Kaution
1.330,00
Warum sehe ich diese Anzeige? – Du siehst diese Anzeige basierend auf Ihrer Navigation auf unserer Website und den Suchkriterien, die du verwendet hast.
Lage
Das Haus befindet sich in einer ruhigen Wohnlage im Stadtteil Roßlau mit sehr guter Anbindung an die Nahversorgung. REWE, dm und Arztpraxen sind in ca. 500 m Fußweg erreichbar. Der nächste Busbahnhof liegt rund 200 m entfernt, der Bahnhof Roßlau ist fußläufig in ca. 600 m erreichbar und bietet direkte Zugverbindungen in die...
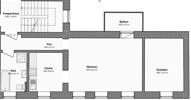
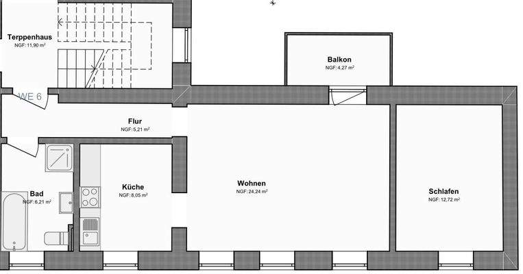
Die Wohnung
Wohnungslage
1. Geschoss
Bezug
sofort
Wohnanlage
Energie & Heizung
Warum sehe ich diese Anzeige? – Du siehst diese Anzeige basierend auf Ihrer Navigation auf unserer Website und den Suchkriterien, die du verwendet hast.
Energieausweistyp
Verbrauchsausweis
Gebäudetyp
Wohngebäude
Endenergieverbrauch
64,00 kWh/(m²·a) - Warmwasser enthalten
Weitere Energiedaten
Energieträger
Elektro
Details
Objektbeschreibung
Wir vermieten drei frisch renovierte 2-Zimmer-Wohnungen in einem gepflegten Mehrfamilienhaus in Dessau-Roßlau. Die Wohnungen befinden sich derzeit in der Fertigstellung. Einbauküchen und Infrarot-Heizungen werden aktuell noch eingebaut. Der geplante Einzug ist ab Mai 2026 vorgesehen; nach Rücksprache ist auch ein früherer...
Ausstattung
Balkon, Keller, Vollbad, Duschbad, Einbauküche, Laminat, Fliesen
Bemerkungen:
Alle Wohnungen wurden frisch renoviert. Einbauküchen mit Elektrogeräten sowie moderne Infrarot-Heizpanele an der Decke werden derzeit noch eingebaut und sind zum Einzug vollständig fertiggestellt. Die Heizung lässt sich zentral über einen...
Preisinformation
Nettokaltmiete: 443,00 EUR
Weitere Informationen
Sonstiges
Heizungsart: Sonstiges (s. Text)
Energieträger: Strom
Makleranfragen nicht erwünscht. Nach § 7 UWG sind unaufgeforderte Kontaktaufnahmen durch Makler ohne ausdrückliche Einwilligung des Empfängers verboten!
ohne-makler (OM) ist weder Anbieter noch Vermittler der Immobilie. OM betreibt eine...
Anbieter der Immobilie
ohne-makler.net - Immobilien selbst vermarkten
Humboldtstr. 25 A, 21509 Glinde
Privat vom Eigentümer
Dein Ansprechpartner
Kontaktiere den Anbieter schriftlich, es ist keine Telefonnummer hinterlegt.
Online-ID: 2pcps57
Referenznummer: 443247
Finde Angebote wie dieses
Hier geht es zu unserem Impressum, den Allgemeinen Geschäftsbedingungen, den Hinweisen zum Datenschutz und nutzungsbasierter Online-Werbung.