

TEKCE Real Estate
Herr Özkan Tekçe
+34 ···
Nr. anzeigenPreise & Kosten
Provision für Käufer
Bitte beachte, das Angebot kann bei Vertragsabschluss die Zahlung einer Provision beinhalten. Weitere Informationen erhältst Du vom Anbieter.
Die Wohnung
Kategorie
Apartment
Wohnungslage
Erdgeschoss
Bezug
TEKCE Real Estate
Wohnanlage
Details
Objektbeschreibung
Kurzbeschreibung
Die eleganten Wohnungen in Villajoyosa, Alicante, bieten große Innenräume, Privatterrassen mit modernes Design und Lebensstil an der Küste nahe des Strandes und der städtischen Annehmlichkeiten an.
Objekt
Moderne 2 und 3-Schlafzimmer-Wohnungen mit privaten Terrassen im Herzen von...
Weitere Informationen
Stichworte
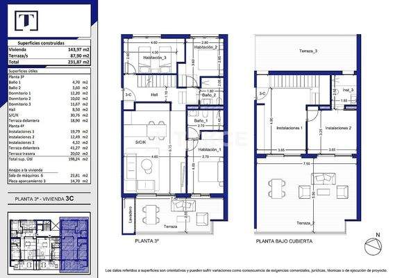
Stellplatz vorhanden, Nutzfläche: 117,00 m², Anzahl der Schlafzimmer: 3, Anzahl der Badezimmer: 2, Anzahl der Wohn-Schlafzimmer: 1, Bundesland: Villajoyosa, 1 Etagen
Anbieter der Immobilie
TEKCE Real Estate
C/El Montículo 8, Benalmádena, 29631 MÁLAGA

Online-ID: 2pcpc53
Referenznummer: ALC-01219-3-MiddleFloor
Finde Angebote wie dieses
Hier geht es zu unserem Impressum, den Allgemeinen Geschäftsbedingungen, den Hinweisen zum Datenschutz und nutzungsbasierter Online-Werbung.