
ohne-makler.net - Immobilien selbst vermarkten
Privat von Adrian Scherer
Kontaktiere den Anbieter schriftlich, es ist keine Telefonnummer hinterlegt.
Preise & Kosten
Provision für Käufer
provisionsfrei
Lage
Die Immobilie befindet sich in Mannheim in einem gewachsenen Wohngebiet mit überwiegend Ein- und Mehrfamilienhausbebauung und ruhigem Umfeld.
Die Lage überzeugt durch eine sehr gute Infrastruktur: Einkaufsmöglichkeiten, Schulen, Kindergärten sowie medizinische Einrichtungen befinden sich in unmittelbarer Nähe. Auch...
Das Haus
Kategorie
Mehrfamilienhaus
Baujahr
1963
Bezug
sofort
Derzeitige Nutzung
vermietet
Energie & Heizung
Warum sehe ich diese Anzeige? – Du siehst diese Anzeige basierend auf Ihrer Navigation auf unserer Website und den Suchkriterien, die du verwendet hast.
Energieausweistyp
Bedarfsausweis
Gebäudetyp
Wohngebäude
Effizienzklasse
G
Endenergiebedarf
243,00 kWh/(m²·a)
Weitere Energiedaten
Energieträger
Fernwärme
Details
Objektbeschreibung
360°-Rundgang: https://www.ohne-makler.net/panorama/422285/
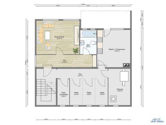
Dieses gepflegte Mehrfamilienhaus in Mannheim umfasst vier Wohneinheiten mit insgesamt ca. 272 m² Wohnfläche auf einem rund 470 m² großen Grundstück. Das Gebäude wurde 1963 in massiver Bauweise errichtet und befindet sich in einem guten Zustand.
In den...
Ausstattung
Balkon, Garten, Keller, Einbauküche, Laminat, Fliesen
Bemerkungen:
- 1963: Bau des Mehrfamilienhauses in Massivbauweise (Vollziegel, ca. 20-30 cm Wandstärke)
- Steildach (>35° Dachneigung), Dachboden nicht ausgebaut
- Unbeheizter Keller mit Fenstern und massiver Stahlbetondecke
- Vier Wohneinheiten im...
Preisinformation
2 Garagenstellplätze
Weitere Informationen
Sonstiges
Heizungsart: Sonstiges (s. Text)
Energieträger: Fernwärme
Makleranfragen nicht erwünscht. Nach § 7 UWG sind unaufgeforderte Kontaktaufnahmen durch Makler ohne ausdrückliche Einwilligung des Empfängers verboten!
ohne-makler (OM) ist weder Anbieter noch Vermittler der Immobilie. OM betreibt...
Anbieter der Immobilie
ohne-makler.net - Immobilien selbst vermarkten
Humboldtstr. 25 A, 21509 Glinde
Privat von Adrian Scherer
Dein Ansprechpartner
Kontaktiere den Anbieter schriftlich, es ist keine Telefonnummer hinterlegt.
Online-ID: 2pcp652
Referenznummer: 422285
Finde Angebote wie dieses
Hier geht es zu unserem Impressum, den Allgemeinen Geschäftsbedingungen, den Hinweisen zum Datenschutz und nutzungsbasierter Online-Werbung.