
ohne-makler.net - Immobilien selbst vermarkten
Privat von Lothar
Kontaktiere den Anbieter schriftlich, es ist keine Telefonnummer hinterlegt.
Preise & Kosten
Provision für Käufer
provisionsfrei
Lage
Das Stadtviertel Maxfeld im Nürnberger Norden zählt zu den begehrtesten Wohnlagen in der Frankenmetropole. Schließlich findet man hier alles, was das tägliche Leben in der Stadt angenehm macht: schöne sanierte Altbauten sowie moderne Neubauten, zahlreiche Einkaufsmöglichkeiten wie z. B. Rewe, Edeka, Aldi und Rossmann, Penny...
Die Wohnung
Wohnungslage
Erdgeschoss
Bezug
nach Absprache
Derzeitige Nutzung
vermietet
Wohnanlage
Energie & Heizung
Warum sehe ich diese Anzeige? – Du siehst diese Anzeige basierend auf Ihrer Navigation auf unserer Website und den Suchkriterien, die du verwendet hast.
Energieausweistyp
Bedarfsausweis
Gebäudetyp
Wohngebäude
Effizienzklasse
A
Endenergiebedarf
50,00 kWh/(m²·a)
Weitere Energiedaten
Energieträger
Fernwärme
Heizungsart
Fußbodenheizung
Details
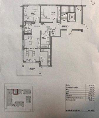
Objektbeschreibung
Neuwertig: attraktive 3-Zimmer-Wohnung mit großzügigem Grundriss, Sonnen-Westterrasse und wunderschönem Garten mit hochwertigen Ausstattungsdetails, wie z.B. Parkettboden in allen Schlafzimmern, hochwertige Fliesen in der Küche und Wohnzimmer, Fußbodenheizung, dreifachverglaste Fenster und Fenstertüren, elektrisch gesteuerte...
Ausstattung
Terrasse, Garten, Keller, Fahrstuhl, Vollbad, Duschbad, Einbauküche, Gäste-WC, Barrierefrei, Parkett, Fliesen
Bemerkungen:
Hochwertige Eiche-Massivholz-Parkettböden in Schlafräumen, Fußbodenheizung, dreifachverglaste Fenster und Fenstertüren, Wohnfühl-Bad mit Wanne, Dusch und Handtuch Heizkörper, Gäste-WC...
Preisinformation
1 Tiefgaragenstellplatz, Kaufpreis: 35.000,00 EUR
Weitere Informationen
Sonstiges
Heizungsart: Fußbodenheizung
Energieträger: Fernwärme
Makleranfragen nicht erwünscht. Nach § 7 UWG sind unaufgeforderte Kontaktaufnahmen durch Makler ohne ausdrückliche Einwilligung des Empfängers verboten!
ohne-makler (OM) ist weder Anbieter noch Vermittler der Immobilie. OM betreibt eine...
Anbieter der Immobilie
ohne-makler.net - Immobilien selbst vermarkten
Humboldtstr. 25 A, 21509 Glinde
Privat von Lothar
Dein Ansprechpartner
Kontaktiere den Anbieter schriftlich, es ist keine Telefonnummer hinterlegt.
Online-ID: 2pclz54
Referenznummer: 441784
Finde Angebote wie dieses
Hier geht es zu unserem Impressum, den Allgemeinen Geschäftsbedingungen, den Hinweisen zum Datenschutz und nutzungsbasierter Online-Werbung.