
Bama-Immobilien
Frau Jasmin Maleki
004 ···
Nr. anzeigenPreise & Kosten
Provision für Käufer
3,57 % vom Kaufpreis inkl. 19% MwSt.
Lage
Die Wohnung befindet sich in einer ruhigen und gewachsenen Wohnlage von Buxtehude. Das Umfeld ist geprägt von gepflegten Wohnhäusern und einer angenehmen Nachbarschaft. Einkaufsmöglichkeiten, Bäcker, Kindergarten sowie weitere Einrichtungen des täglichen Bedarfs sind in wenigen Minuten fußläufig erreichbar.
Die...
Die Wohnung
Wohnungslage
1. Geschoss
Wohnanlage
Energie & Heizung
Warum sehe ich diese Anzeige? – Du siehst diese Anzeige basierend auf Ihrer Navigation auf unserer Website und den Suchkriterien, die du verwendet hast.
Energieausweistyp
Verbrauchsausweis
Gebäudetyp
Wohngebäude
Baujahr laut Energieausweis
1968
Wesentliche Energieträger
FERN
Gültigkeit
bis 26.02.2034
Effizienzklasse
C
Endenergieverbrauch
90,00 kWh/(m²·a)
Weitere Energiedaten
Energieträger
Fernwärme
Heizungsart
Zentralheizung
Details
Objektbeschreibung
Zum Verkauf steht eine geschmackvoll modernisierte und sehr gepflegte Eigentumswohnung im 1. Obergeschoss eines ruhigen Mehrfamilienhauses mit Aufzug in Buxtehude.
Die Wohnung präsentiert sich in einem zeitlosen, geschmackvollen Stil und überzeugt durch ihre helle Atmosphäre sowie eine durchdachte...
Ausstattung
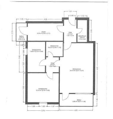
- Wohnfläche ca. 69,45 m²
- 2,5 Zimmer
- Baujahr 1968
- 1. Obergeschoss
- Umfassend renoviert im Jahr 2024
- Neue Fenster, Türen, Böden und Wandoberflächen
- Vinylboden in Holzoptik
- Badezimmer mit Dusche
- 2 Balkone
- Fernwärme
- Aufzug im Haus
- Kellerraum vorhanden
- Hausgeld ca. 505 €...
Weitere Informationen
Sonstiges
Die Ankaufskosten (Notar, Gerichtskosten und Grunderwerbsteuer) gehen zu Lasten des Käufers.
Der Kauf einer Immobilie soll gut überlegt und geprüft sein, deshalb empfehlen wir vor dem Kauf einer Immobilie die Beauftragung eines Bausachverständigen bzw. Gutachters sowie die Sichtung und Überprüfung aller...
Anbieter der Immobilie
Bama-Immobilien
Holzdamm 53, 20099 Hamburg
Online-ID: 2pcka53
Referenznummer: 7209
Finde Angebote wie dieses
Hier geht es zu unserem Impressum, den Allgemeinen Geschäftsbedingungen, den Hinweisen zum Datenschutz und nutzungsbasierter Online-Werbung.